Каминная топка ДЕЛЬТА 700 PB три стекла подовое горение принтинг черный шамот производитель Экокамин
- Производитель:
- Модель:8989
- 8
- Вес:380 кг
- Виды твердого топлива:Твердое
- Водяной контур:Нет
- Вторичный дожиг:Постоянная подача воздуха
- Гарантийный срок:3 года
- Длительное горение:до 6 часов
- Подача воздуха извне:2 х 150 мм
- Показать все характеристики
Каминная топка Экокамин ДЕЛЬТА 700 PB три стекла подовое горение принтинг черный шамот
Каминная топка ДЕЛЬТА 700 PВ три стекла производится из высококачественной котельной стали и покрыта термостойким лакокрасочным покрытием с антикоррозийными свойствами.
Топочная камера футерована современным материалом, литьевым шамотом черно цвета, и надежно защищает металлические детали корпуса топки от перегрева.
Жаропрочное стекло из Японии способно выдерживать температуру до 750 С. Стекло П образное с принтингом.
Система тепловой разводки имеет два встроенных патрубка диаметром 125 мм для подключения системы распределения теплого воздуха в смежные помещения и позволяет увеличить площадь обогреваемых помещений.
Система забора воздуха извне, имеет два встроенных патрубка диаметром 150 мм для подключения забора воздуха на горение из соседнего помещения, улицы, подвала, и повышает надежность работы топки.
Система очистки стекла эффективно очищает жаропрочное стекло и позволяет любоваться красотой огня.
Система вторичного дожига увеличивает КПД топки и позволяет экономить дрова.
С конца декабря 2023 года топки серии Вега, Дельта и камины Родос производятся без встроенных шиберных заслонок.
Ребра жесткости по всему корпусу топки и встроенные в дымосборник тепловые каналы позволяют снимать больше тепла и отдавать его в помещение путем конвекции. Высокий дымосборник и пламярассекатель не позволяют дымовым газам попадать в помещение при открывании дверцы.
Бесшумная и надежная тросовая система с противовесом и жаропрочными подшипниками, позволяет открывать дверцу топки вверх и производить закладку дров в топочную камеру.
Для оптимизации процессов горения все регулировки подачи воздуха на систему первичное горение, систему очистки стекла и встроенную шиберную заслонку производятся специальным ключом «ХОЛОДНАЯ РУКА».
Под чугунной колосниковой решеткой в днище топки, находится большой зольный ящик, который удобно вынимается.
Устойчивые, регулируемые по высоте ножки (20 мм), позволяют при монтаже установить топку по уровню.
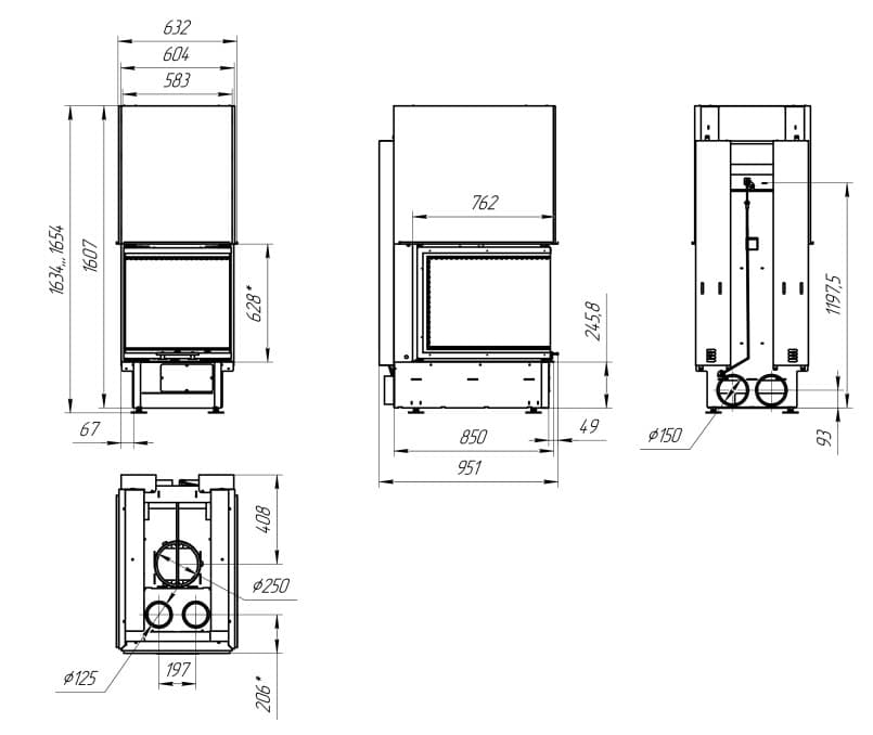
Размеры ДЕЛЬТА 700 PВ три стекла подовое горение принтинг Ш×В×Г: 632×1634×951 мм.
Мощность: 11 кВт. Способна обогреть помещения площадью до 100 м2.
Отличие подовой каминной топки от колосниковой в способе подачи воздуха на горение. В колосниковой топке воздух на дрова подается снизу через колосниковую решетку, а в подовой - по фронту через воздуховод, расположенный по всей длине дверцы.
Каминная топка ДЕЛЬТА 700 PВ три стекла подовое горение принтинг чертеж:

Каминная топка ДЕЛЬТА 700 PВ три стекла прекрасно дополнят интерьер дома и подарят вам уют!
| Вес | 380 кг |
| Виды твердого топлива | Твердое |
| Водяной контур | Нет |
| Вторичный дожиг | Постоянная подача воздуха |
| Гарантийный срок | 3 года |
| Глубина | 951 мм |
| Диаметр дымохода | 250 мм |
| Коэффициент полезного действия | 80 % |
| Мощность номинальная | 11 кВт |
| Подключение к дымоходу | Верхнее |
| Производитель | Экокамин |
| Система очистки стекла | регулируется заслонкой |
| Способ открытия дверцы топки | Вверх |
| Страна производитель | Россия |
| Форма стекла топки | П-образное с принтингом |
| Ширина | 632 мм |
| Высота | 1634 мм |
| Материал топки | Сталь |
| Длительное горение | до 6 часов |
| Подача воздуха извне | 2 х 150 мм |
Пока не было вопросов.
Теги: каминная топка, стальная, Экокамин, Ecokamin, Дельта























