Каминная топка Hoxter HAKA 63/51a производитель Hoxter
- Производитель:
- Модель:7528
- 6
- Вес:215 кг
- Виды твердого топлива:Дрова
- Водяной контур:Нет
- Вторичный дожиг:Да
- Гарантийный срок:5 лет
- Мощность печи:6 - 16 кВт
- Показать все характеристики
Описание Hoxter HAKA 63/51a
Каминная топка изготовлена из стали, изделие можно использовать для создания теплоемких облицовок, также имеется возможность подключения системы управления горением.
В дополнительных опциях Вы можете подобрать
аксессуары для вашей топки и дымохода, или же заказать двойное
остекление для уменьшения теплового излучения через стекло.
Мощность - 6-16 кВт;
Эффективность 80%;
Расшифровка названия продукта:
HAKA - топка с прямым стеклом.
ECKA - топка с угловым стеклом.
UKA - топка с П-образным стеклом.
GT - печная дверца.
GT2 - печная дверца с основанием.
WHE - водонагревательная топка.
h - подъёмная дверца.
S - топка с уменьшенной глубиной.
T - камин туннельный.
a - дополнительная растопочная дверца.
G - камин с большей камерой сгорания.
N - керамическая камера дожига.
ks - печные дверцы с уменьшенной глубиной.
Цена указана за модель HAKA 63/51a с чугунным дымосборником и одинарным остеклением без дополнительных опций.
Каминная топка Hoxter HAKA 63/51a в интерьере
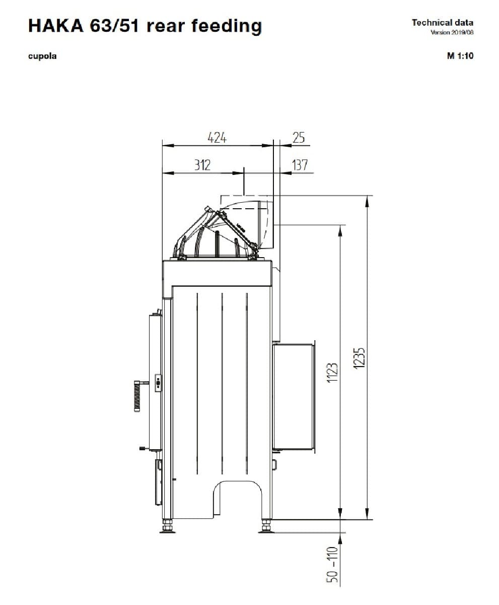
Габаритные размеры Каминная топка HAKA 63/51a
| Вес | 215 кг |
| Виды твердого топлива | Дрова |
| Водяной контур | Нет |
| Вторичный дожиг | Да |
| Гарантийный срок | 5 лет |
| Глубина | 499 мм |
| Наличие шибера | Нет |
| Подключение к дымоходу | Верхнее |
| Подъем стекла вверх | Нет |
| Производитель | Hoxter |
| Система очистки стекла | Да |
| Страна производитель | Чехия |
| Тип остекления | Прямое |
| Ширина | 710 мм |
| Высота | 1234 мм |
| Материал топки | Сталь |
| Мощность печи | 6 - 16 кВт |
Пока не было вопросов.
Теги: каминная топка, чугунная, Hoxter
































