- ...
- Главная
- Каминные топки
- Топки Hoxter для камина
- Каминная топка Hoxter HAKA 63/51W производитель Hoxter
Каминная топка Hoxter HAKA 63/51W производитель Hoxter
-
Рейтинг:
- Производитель:
- Модель:7684
- 6
- Вес:322 кг
- Виды твердого топлива:Дрова
- Водяной контур:Да
- Вторичный дожиг:Да
- Гарантийный срок:5 лет
- Мощность печи:10 - 24 кВт
- Показать все характеристики
Цену уточняйте
Описание Hoxter HAKA 63/51W
Мощность - 5 -10 кВт;
Эффективность 80%;
Расшифровка названия продукта:
HAKA - топка с прямым стеклом.
ECKA - топка с угловым стеклом.
UKA - топка с П-образным стеклом.
GT - печная дверца.
GT2 - печная дверца с основанием.
WHE - водонагревательная топка.
h - подъёмная дверца.
S - топка с уменьшенной глубиной.
T - камин туннельный.
a - дополнительная растопочная дверца.
G - камин с большей камерой сгорания.
N - керамическая камера дожига.
ks - печные дверцы с уменьшенной глубиной.
Цена указана за модель HAKA 63/51W с чугунным дымосборником и одинарным остеклением без дополнительных опций.
Каминная топка Hoxter HAKA 63/51W в интерьере
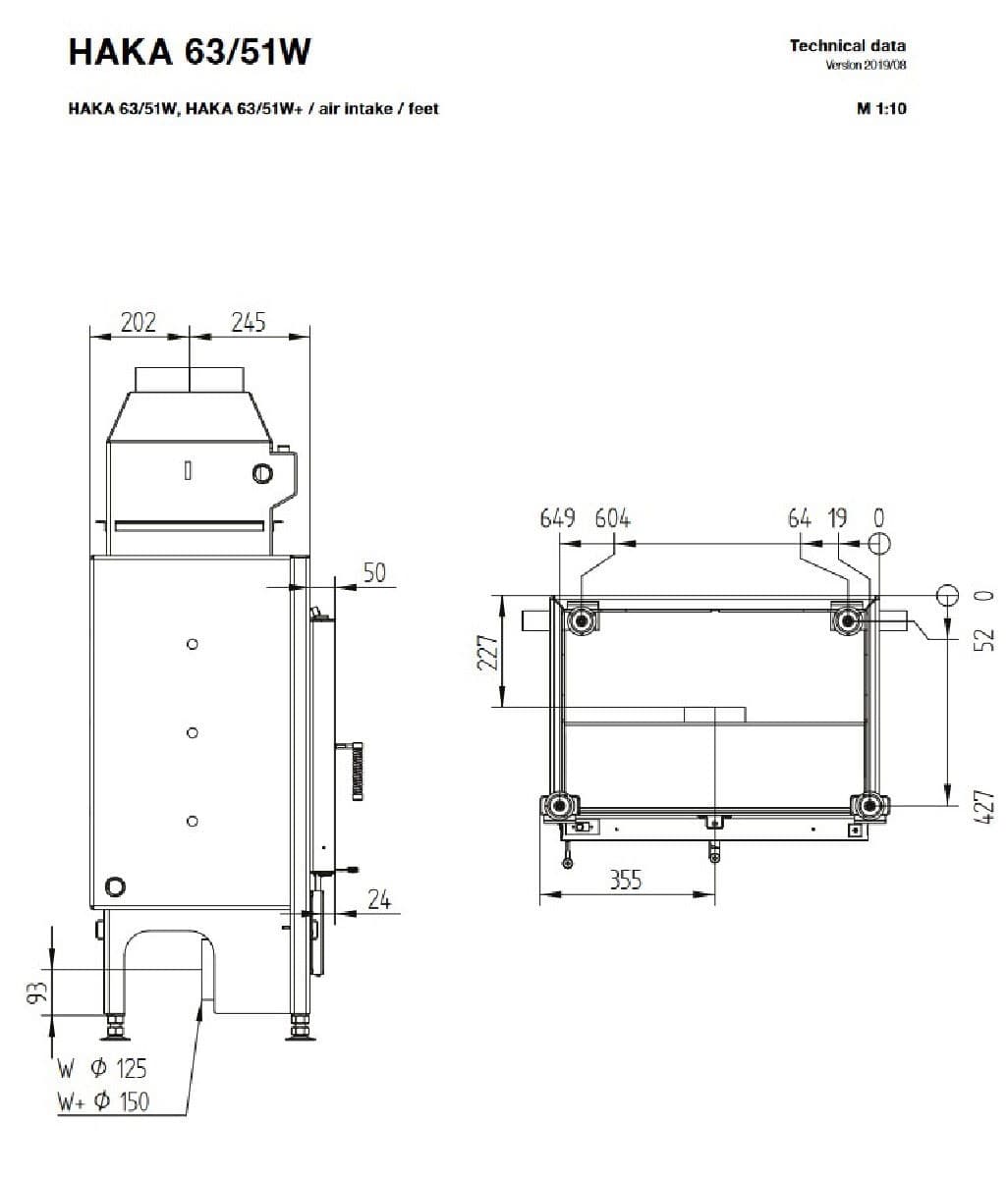
Габаритные размеры Каминная топка HAKA 63/51W
| Вес | 322 кг |
| Виды твердого топлива | Дрова |
| Водяной контур | Да |
| Вторичный дожиг | Да |
| Гарантийный срок | 5 лет |
| Глубина | 497 мм |
| Наличие шибера | Нет |
| Подключение к дымоходу | Верхнее |
| Подъем стекла вверх | Нет |
| Производитель | Hoxter |
| Система очистки стекла | Да |
| Страна производитель | Чехия |
| Тип остекления | Прямое |
| Ширина | 780 мм |
| Высота | 1316 мм |
| Материал топки | Сталь |
| Мощность печи | 10 - 24 кВт |
Пока не было вопросов.
Вы смотрели
Биокамин Decoflame Montreal 800mm Front
Производитель: Decoflame
6
6
Биокамин ETUDE 1200 Loft (ESTETIC FLAME) Zefire
Производитель: ZeFire
1
1
Печь Везувий ЛЕГЕНДА РУССКИЙ ПАР Ковка 18 (271)
Производитель: Везувий
7
7
Теги: каминная топка, чугунная, Hoxter
Похожие товары
Топка-камин Brunner BKH 5.0 Tunnel 50-162 ST-KT
Производитель: Brunner
1
1
Топка-камин Brunner BKH 5.0 flat 50-162 ST
Производитель: Brunner
1
1
Топка-камин Brunner BKH 5.0 flat 42-42 DT
Производитель: Brunner
1
1
Каминная топка Invicta 800 Grand Angle угловая правая
Производитель: Invicta
8
8
Каминная топка Invicta 800 Grand Angle угловая левая
Производитель: Invicta
8
8
Топка каминная Deville BOIS VISION IC65
Производитель: Invicta
9
9
Другие товары
Топка-камин Brunner BKH 5.0 Tunnel 50-162 ST-KT
Производитель: Brunner
1
1
Топка-камин Brunner BKH 5.0 flat 50-162 ST
Производитель: Brunner
1
1
Топка-камин Brunner BKH 5.0 flat 42-42 DT
Производитель: Brunner
1
1
Каминная топка Invicta 800 Grand Angle угловая правая
Производитель: Invicta
8
8
Каминная топка Invicta 800 Grand Angle угловая левая
Производитель: Invicta
8
8
Топка каминная Deville BOIS VISION IC65
Производитель: Invicta
9
9































