Каминная топка ВЕГА 1000 M принтинг производитель Экокамин
- Производитель:
- Модель:8976
- 8
- Вес:398 кг
- Виды твердого топлива:Твердое
- Водяной контур:Нет
- Вторичный дожиг:Постоянная подача воздуха
- Гарантийный срок:3 года
- Длительное горение:до 6 часов
- Подача воздуха извне:1 х 125 мм
- Показать все характеристики
Каминная топка Экокамин ВЕГА 1000 M принтинг
Каминная топка ВЕГА 1000 M производится из высококачественной котельной стали и покрыта термостойким лакокрасочным покрытием с антикоррозийными свойствами.
Топочная камера футерована современным материалом, литьевым шамотом белого цвета, и надежно защищает металлические детали корпуса топки от перегрева.
Жаропрочное стекло из Японии способно выдерживать температуру до 750 С. Стекло прямое с принтингом.
Система тепловой разводки имеет два встроенных патрубка диаметром 125 мм для подключения системы распределения теплого воздуха в смежные помещения и позволяет увеличить площадь обогреваемых помещений.
Система забора воздуха извне, имеет два встроенных патрубка диаметром 125 мм для подключения забора воздуха на горение из соседнего помещения, улицы, подвала, и повышает надежность работы топки.
Система очистки стекла эффективно очищает жаропрочное стекло и позволяет любоваться красотой огня.
Система вторичного дожига увеличивает КПД топки и позволяет экономить дрова.
С конца декабря 2023 года топки серии Вега, Дельта и камины Родос производятся без встроенных шиберных заслонок.
Ребра жесткости по всему корпусу топки и встроенные в дымосборник тепловые каналы позволяют снимать больше тепла и отдавать его в помещение путем конвекции. Высокий дымосборник и пламярассекатель не позволяют дымовым газам попадать в помещение при открывании дверцы.
Бесшумная и надежная тросовая система с противовесом и жаропрочными подшипниками, позволяет открывать дверцу топки вверх и производить закладку дров в топочную камеру.
Для оптимизации процессов горения все регулировки подачи воздуха на систему первичное горение, систему очистки стекла и встроенную шиберную заслонку производятся специальным ключом «ХОЛОДНАЯ РУКА».
Под чугунной колосниковой решеткой в днище топки, находится большой зольный ящик, который удобно вынимается.
Устойчивые, регулируемые по высоте ножки (100 мм), позволяют при монтаже установить топку по уровню.
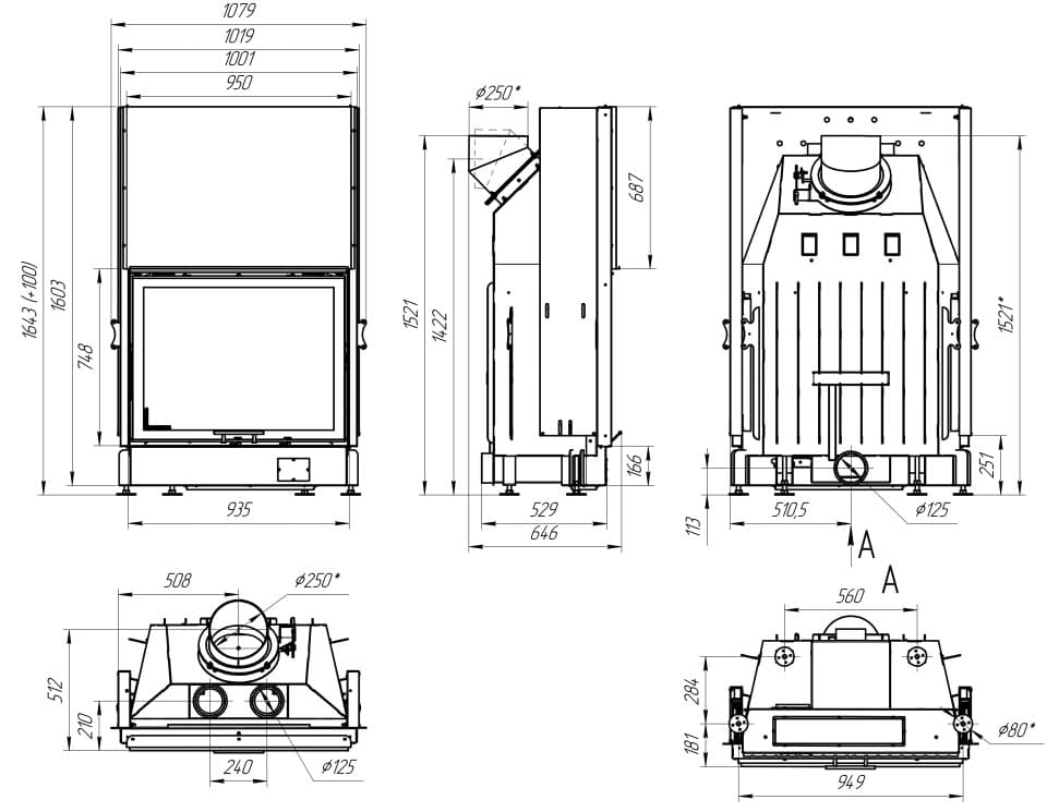
Размеры ВЕГА 1000 M Ш×В×Г: 1078×1565×575 мм.
Мощность: 18 кВт. Способна обогреть помещения площадью до 175 м2.
Каминная топка ВЕГА 1000 M принтинг чертеж:

Каминная топка ВЕГА 1000 M принесет в ваш дом атмосферу комфорта, и отлично впишется в любой интерьер.
| Вес | 398 кг |
| Виды твердого топлива | Твердое |
| Водяной контур | Нет |
| Вторичный дожиг | Постоянная подача воздуха |
| Гарантийный срок | 3 года |
| Глубина | 575 мм |
| Диаметр дымохода | 250 мм |
| Коэффициент полезного действия | 80 % |
| Мощность номинальная | 18 кВт |
| Подключение к дымоходу | Поворотный патрубок |
| Производитель | Экокамин |
| Система очистки стекла | регулируется заслонкой |
| Способ открытия дверцы топки | Вверх |
| Страна производитель | Россия |
| Форма стекла топки | Прямое с принтингом |
| Ширина | 1078 мм |
| Высота | 1565 мм |
| Материал топки | Сталь |
| Длительное горение | до 6 часов |
| Подача воздуха извне | 1 х 125 мм |
Пока не было вопросов.
Теги: каминная топка, стальная, Экокамин, Ecokamin, Вега























