Печь GFS Гефест Гром 40 (П2) производитель ТехноЛит
- Производитель:
- Модель:12296
- 10
- Вес:365 кг
- Вынос портала:200
- Длина дров:50 см
- Материал:Чугун
- Объем парной:40 м3
- Показать все характеристики
Печь Гром 30 (П2) отличается каменкой новейшей разработки: несмотря на огромную массу, каменка нагревается в 2 раза быстрее любых других моделей GFS Гефест и длительное время поддерживает набранную температуру неизменной. Увеличенная масса, толщина боковых стенок 14 мм повышают надежность и теплоаккумулирующую способность, а для быстрого нагрева парной боковые стенки оборудованы конвекционными ребрами не только снаружи, но и на внутренней поверхности. Гром – печь премиум-класса повышенной надежности для использования в средних и крупных парных, включая коммерческие бани (гарантия 2 года на коммерческое использование, 10 лет для индивидуальной эксплуатации).
В комплект входит:
-
печь банная Гром 40
-
зольный ящик (нерж.сталь)
-
стартовая труба 130х180
-
герметик "Титан" до 1500С-1 шт
-
гарантийный паспорт (руководство по эксплуатации)
Русская баня
Печь GFS Гефест Гроза с уникальной каменкой прямого нагрева для получения легкого мелкодисперсного пара, необходимого для режима русской бани. Благодаря инновационной конструкции, печь гарантированно входит в режим за 60 минут.

Запатентованная каменка
Не имеющая аналогов каменка толщиной 45 мм обеспечивает непревзойденную надежность и высокую теплоемкость, 120 теплосъемных шипов по всей её поверхности, позволяют каменке нагреться за 60 минут до 700 градусов и долгое время удерживать тепло.

Система дожига пиролизных газов
Во второй камере топки с помощью потока воздуха происходит дожиг пиролизных газов, благодаря чему повышается температура горения, что увеличивает КПД печи до 90 процентов.

Конвекционные ребра
Увеличивают площадь теплопередающей поверхности на 110 процентов, что обеспечивает быстрый нагрев парного помещения. 
Система «Чистое стекло»
Благодаря направленной конвекции воздушного потока, происходит очистка стекла, на его поверхности не оседает сажа и копоть, стекло долгое время остается полностью чистым и прозрачным.

Уникальные теплосъёмные шипы
Пирамидальные шипы, расположенные внутри топки на боковых стенках способствуют эффективному горению дров и увеличивают площадь теплопередачи на 80%, что позволяет печи более динамично войти в режим.

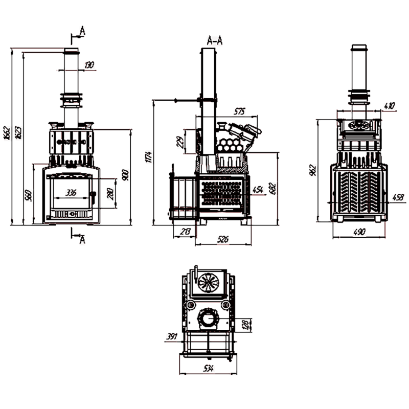
| Вес | 365 кг |
| Вынос портала | 200 |
| Длина дров | 50 см |
| Материал | Чугун |
| Объем парной | 40 м3 |
| Режим парной | Русская баня |
| Диаметр подключения дымохода | 130 мм |
| Вид топлива | Дрова |
| Размеры | 490х584х732 мм |
| Размер стекла | 336х280 мм |
Пока не было вопросов.
Теги: печь для бани, чугунная, дровяная, GFS Гефест, технолит,













































