Печь-камин Jydepejsen Mido Soapstone производитель Jydepejsen
- Производитель:
- Модель:6273
- 1
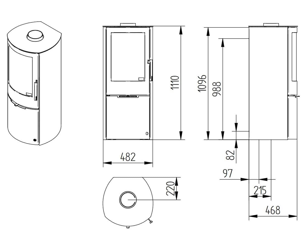
- Высота:1150 мм
- Глубина:510 мм
- Ширина:520 мм
- Варочная поверхность:нет
- Вес:215 кг
- Показать все характеристики
Печь-камин Jydepejsen Mido Soapstone в каменном корпусе, имеет уникальные детали и качество от мастеров отопительных приборов. Новый Mido Soapstone в каменной облицовке проработан до мельчайших деталей. У Mido большая чугунная дверца, за которой прячется зольник. Через большое изогнутое стекло вы впечатляюще смотрите на топку, где элегантно горит огонь. Гармоничный дизайн привлекает своей простотой ко многим различным настройкам. У вас есть возможность выбирать между различными ручками, в зависимости от внешнего вида, который вы хотите, чтобы имела печь.



Чертеж печи-камина


| Высота | 1150 мм |
| Глубина | 510 мм |
| Ширина | 520 мм |
| Варочная поверхность | нет |
| Вес | 215 кг |
| Вид топлива | дрова, брикеты |
| Водяной контур | нет |
| Диаметр дымового патрубка | 130 мм |
| Длительное горение | да |
| Материал топки | сталь |
| Материалы корпуса | сталь |
| Мощность печи | 8 кВт |
| Облицовочный материал печи-камина | Металл |
| Подключение к дымоходу | Заднее |
| Расположение печи-камина | Пристенные |
| Производитель | Jydepejsen (Дания) |
Пока не было вопросов.
Теги: печь-камин, дровяной, Jydepejsen

















