Печь-камин Jydepejsen Zeta Freestanding Black производитель Jydepejsen
- Производитель:
- Модель:9357
- 1
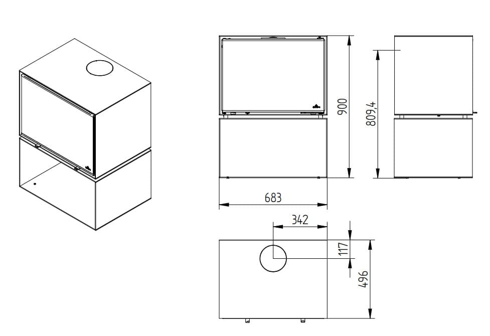
- Высота:900 мм
- Глубина:496 мм
- Ширина:683 мм
- Варочная поверхность:нет
- Вес:170 кг
- Подача воздуха извне:нет
- Показать все характеристики
Дровяная печь Zeta – это идеальное сочетание огня и стильного предмета интерьера.
Zeta — серия каминов, основанная на скандинавских традициях, когда речь идет о высоком мастерстве и стильном дизайне.
Уникальное сочетание вставки Jydepejsen H530, красиво расположенной в сердце печи, и свободы выбора между цоколями создает новые возможности и широкое выражение современного дизайна интерьера.
Ваш индивидуальный выбор может быть выполнен в соответствии с формой, цоколем и материалом. Выберите между Zeta Freestanding, Zeta Base и Zeta Wall из кортеновой стали или черной стали и ощутите захватывающее взаимодействие между материалами, формами и огнем.
Zeta Freestanding Black - дровяная печь с основанием, которое удобно использовать для хранения дров.
Через большое стекло удобно наблюдать за горящим пламенем.
Корпус выполнен из стали и окрашен в черный цвет.
Топка внутри выложена плитами вермикулита.
В печи реализована запатентованная воздушная система DuplicAir, обеспечивающая чистое сгорание топлива и минимальную эмиссию.
Мощность печи 4-9 кВт (номинальная мощность: 7,4 кВт). Такая печь способна обогреть площадь до 140 м2.
КПД - 80%.
Диаметр дымохода: 150 мм.
Размеры В×Ш×Г: 900×683×496 мм.
Размеры топки В×Ш×Г: 350 x 600 x 300 мм.
Печь-камин Jydepejsen Zeta Freestanding Black чертеж:

Печь-камин Jydepejsen Zeta Freestanding Black в интерьере
:


| Высота | 900 мм |
| Глубина | 496 мм |
| Ширина | 683 мм |
| Варочная поверхность | нет |
| Вес | 170 кг |
| Вид топлива | дрова, брикеты |
| Водяной контур | нет |
| Диаметр дымового патрубка | 150 мм |
| Длительное горение | да |
| Материалы корпуса | сталь |
| Номинальная мощность | 7,4 кВт |
| Облицовочный материал печи-камина | металл |
| Расположение печи-камина | Пристенные |
| Производитель | Jydepejsen (Дания) |
| Подача воздуха извне | нет |
Пока не было вопросов.
Теги: печь-камин, дровяной, Jydepejsen



























