Печь-камин Solzaima Back Box Eco
- Производитель:
- Модель:10138
- 6
- Вторичный дожиг:да
- Максимальная длина поленьев (мм) :600 мм
- Система очистки стекла :да
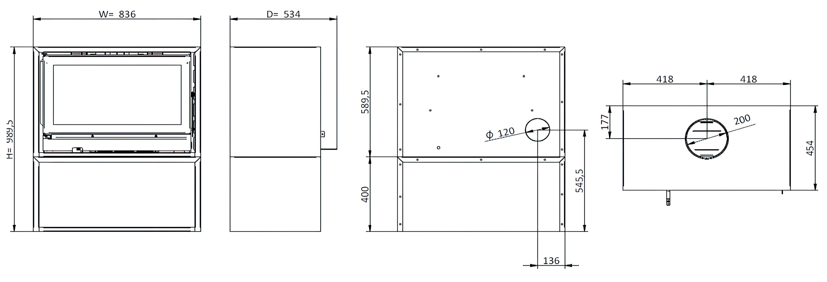
- Высота:990 мм
- Глубина:534 мм
- Ширина:836 мм
- Вес:139 кг
- Водяной контур:нет
- Мощность (кВт):7,6-14 кВт
- Подача воздуха извне:да
- Показать все характеристики
Solzaima Back Box Eco - идеальное решение для любителей комфорта и прекрасного обзора на пламя. Простой и элегантный внешний вид сочетается с отличными тепловыми характеристиками.
Камин изготовлен из жаростойкой стали толщиной 5 мм в соответствии с европейскими стандартами качества, а в качестве облицовки используется высококачественный листовой металл, отличающийся хорошей теплопроводностью и минималистической простотой.
Камера сгорания выложена толстыми вермикулитовыми плитами и оснащена чугунным колосником, что делает важнейшие части камина сверхпрочными и, при правильной эксплуатации, он служит долгие годы без нареканий.
Все дровяные печи для локального отопления оснащены дефлектором, который направляет золу в ящик, чтобы облегчить очистку вашего оборудования. Они имеют двойной дефлектор: один из листового металла, другой из вермикулита, что делает оборудование более эффективным. Циркуляция воздуха внутри помогает гарантировать, что окно всегда чистое во время работы.
Контроль за процессом горения, который достигается за счёт герметичности отопительных приборов и контроля подачи воздуха на горение в топочную камеру.
Под топочной камерой расположен открытый внушительный отсек, который служит для хранения большого запаса дровяного топлива.

Мощность печи: 7.6-14 кВт (номинальная мощность: 10.8 кВт).
Такая печь способна обогреть помещения объемом до 245 м3.
КПД - 83%.
Диаметр дымохода: 200 мм.
Размеры В×Ш×Г: 990×836×534 мм.
Максимальная длина дров: 60 см.
Весь ассортимент продукции Solzaima отличается высокой точностью сборки и качеством исходных материалов. Производственный процесс проходит строгий контроль, а остаточные материалы перерабатываются. Все это для того, чтобы ваш дом был оснащен качественным и надежным оборудованием. Solzaima имеет экологический сертификат ISO 14001 и сертификат качества ISO 9001. В этом отношении компания является образцом для подражания.
Печь-камин Solzaima Back Box Eco чертеж:


| Вторичный дожиг | да |
| Максимальная длина поленьев (мм) | 600 мм |
| Система очистки стекла | да |
| Высота | 990 мм |
| Глубина | 534 мм |
| Ширина | 836 мм |
| Вес | 139 кг |
| Водяной контур | нет |
| Диаметр дымового патрубка | 200 мм |
| Длительное горение | да |
| КПД | 83 % |
| Номинальная мощность | 10,8 кВт |
| Отапливаемый объём | 245 м3 |
| Расположение печи-камина | Пристенные |
| Расход твердого топлива | 3,1 кг/ч |
| Производитель | Solzaima (Португалия) |
| Мощность (кВт) | 7,6-14 кВт |
| Подача воздуха извне | да |
Пока не было вопросов.
Теги: печь-камин, дровяной, Solzaima






























