Печь-камин Solzaima Sado (Red Pod) производитель Solzaima
- Производитель:
- Модель:10198
- 6
- Вторичный дожиг:да
- Максимальная длина поленьев (мм) :250 мм
- Система очистки стекла :да
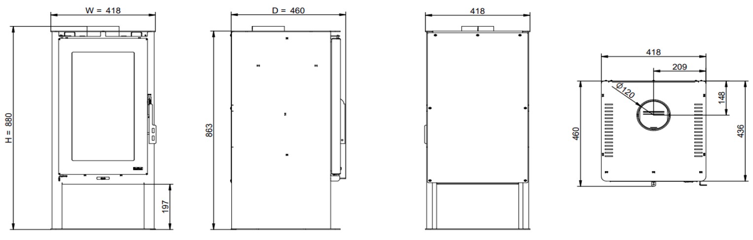
- Высота:980 мм
- Глубина:490 мм
- Ширина:470 мм
- Вес:100 кг
- Водяной контур:нет
- Показать все характеристики
Sado (Red Pod) - стальная дровяная печь мощностью 6.7 кВт. Она проста в установке и не требует какой-либо отделки.
Модель имеет прямое остекление. Термостойкое керамическое стекло способно выдержать температуру до 750 °C при непрерывном использовании.
Камера сгорания и внешний кожух изготовлены из высококачественной углеродистой стали толщиной от 1.5 до 4 мм.
Топка футерована вермикулитом.
Для удобства эксплуатации и обслуживания в печи предусмотрены системы «чистое стекло» и «вторичного дожига».
При ее производстве используются только высококачественные материалы.
Мощность печи: 6.7 кВт.
Такая печь способна обогреть помещения объемом до 152 м3.
КПД - 80%.
Диаметр дымохода: 150 мм.
Размеры В×Ш×Г: 980×470×490 мм.
Максимальная длина дров: 25 см.
Весь ассортимент продукции Solzaima отличается высокой точностью сборки и качеством исходных материалов. Производственный процесс проходит строгий контроль, а остаточные материалы перерабатываются. Все это для того, чтобы ваш дом был оснащен качественным и надежным оборудованием. Solzaima имеет экологический сертификат ISO 14001 и сертификат качества ISO 9001. В этом отношении компания является образцом для подражания.
Печь-камин Sado чертеж:


| Вторичный дожиг | да |
| Максимальная длина поленьев (мм) | 250 мм |
| Система очистки стекла | да |
| Высота | 980 мм |
| Глубина | 490 мм |
| Ширина | 470 мм |
| Вес | 100 кг |
| Водяной контур | нет |
| Диаметр дымового патрубка | 150 мм |
| КПД | 80 % |
| Номинальная мощность | 6,7 кВт |
| Отапливаемый объём | 152 м3 |
| Расположение печи-камина | пристенное |
| Расход твердого топлива | 2.22 кг/ч |
| Производитель | Solzaima (Португалия) |
Пока не было вопросов.
Теги: печь-камин, дровяной, Solzaima, Red Pod

















