Каминная топка Spartherm Arte Bh производитель Spartherm
- Производитель:
- Модель:5670
- 8
- Вес:287 кг
- Виды твердого топлива:Твердое
- Водяной контур:Нет
- Гарантийный срок:5 лет
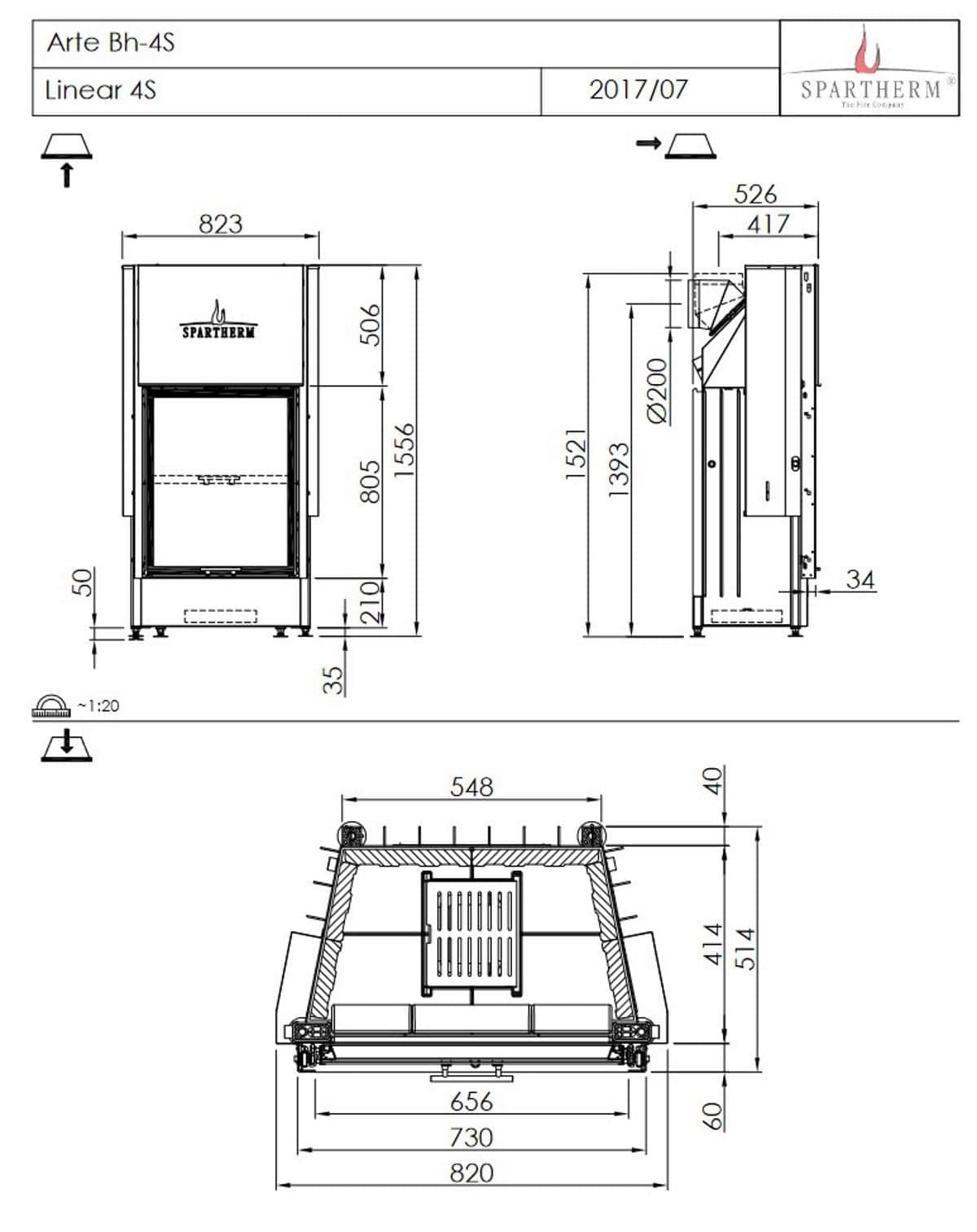
- Глубина:526 мм
- Показать все характеристики
Каминная топка Spartherm Arte Bh с прямым стеклом - воплощение настоящего немецкого качества, сочетающая в себе эстетику изысканного дизайна и последние технические разработки в области производства каминного оборудования. По всем параметрам топки Spartherm полностью соответствуют требованиям к продукции премиум-класса и изготавливаются только из высококачественной стали. Камин оснащен бесшумным механизмом подъема дверцы, обеспечивающим полную герметичность топочной камеры, а также системой "чистое стекло" и полностью регулируемой системой вторичного дожига, позволяющей достигать высоких показателей теплоотдачи.

Особенности топки Spartherm Arte Bh:
- Серия Linear 4S/3S - это керамопечать по всему периметру стекла (4S) или по трем сторонам (3S)
- Стандартная форма оформления с покрытыми черным термостойким лаком деталями дверки. Решение в привычных классических формах. Удобное обслуживание и уход
- Топка оснащена поворотным чугунным дымосборником для индивидуального направления потоков газа
- Современный дизайн - максимально видная топочная часть. Конструкция дверцы выполнена таким образом, чтобы не мешать восприятию живого огня
- Герметичность корпуса достигается отсутствием винтовых и шурупных креплений
- В топке использованы не требующие технического обслуживания термостойкие подшипники и шарикоподшипники скользящего трения. Доступ в контргрузовую шахту возможен через топочную камеру
- Возможно подключение подачи воздуха на горение извне
- Подача воздуха на первичный и вторичный дожиг регулируется независимо друг от друга. Вторичный дожиг воздуха в топочной камере обеспечивает эффективное сжигание с низким уровнем выброса вредных веществ
- Топка оснащена механизмом фиксации дверцы для закладки дров и чистки стекла
- Топка имеет одинарное остекление стеклокерамикой высокой температурной стойкости от лидера мирового рынка SCHOTT. Инфракрасное покрытые обеспечивает защиту от вредного спектра излучения
- Система самоочистки стекла обеспечивает длительный обзор пламени без помех
- Поворотная колосниковая решетка из высококачественного литого материала, которую легко и просто чистить
- Рычаг для управления воздухом одновременно используется для регулировки приточного воздуха, вторичного дожига и системы "чистое стекло". Обладает телескопической механикой, минималистичным дизайном и высокой функциональностью. Для использования регулировки не нужны специальные инструменты, кроме ключа "холодная рука". Регулировочный рычаг почти незаметен и не нарушает органичный внешний вид фасада топки
- Подъемная рукоятка красивой и удобной формы выполнена из нержавеющей стали
- Дверца оснащена замком Soft Close, имеющим европейский патент. Жесткие, не подверженные перекосу дверные профили обеспечивают герметичность топочной камеры
- Облицовка топочной камеры не чувствительна к ударам, термостойка и обладает превосходными теплоизоляционными качествами
- Регулируемые ножки предназначены для удобного выравнивания топки, имеют подвижные диски в основании и обеспечивают устойчивое положение топки

Здесь вы зажигаете могучий огонь в полном великолепии. Формат Arte Bh оставляет пламя свободным и дает небольшое преимущество вертикали. Arte Bh всасывает воздух для горения в зависимости от окружающего воздуха, а дверцу камина можно поднимать и закрывать автоматически. Исчерпывающий пакет функций позволяет эффективно использовать энергию 11,0 кВт.

Каминная топка Spartherm Arte Bh в интерьере


| Вес | 287 кг |
| Виды твердого топлива | Твердое |
| Водяной контур | Нет |
| Гарантийный срок | 5 лет |
| Глубина | 526 мм |
| Диаметр дымохода | 200 мм |
| Количество стекол в дверце | 1 |
| Коэффициент полезного действия | 78 % |
| Мощность номинальная | 11 кВт |
| Наличие шибера | Нет |
| Подключение к дымоходу | Верхнее |
| Производитель | Spartherm |
| Система очистки стекла | Обдув стекла потоком воздуха |
| Способ открытия дверцы топки | Подъём вверх |
| Страна производитель | Германия |
| Форма стекла топки | Прямое |
| Ширина | 823 мм |
| Высота | 1556 мм |
| Материал топки | сталь, шамот |
Пока не было вопросов.
Теги: каминная топка, стальная, Spartherm























