Каминная топка Spartherm Mini 2L/R производитель Spartherm
- Производитель:
- Модель:5668
- 8
- Вес:166 кг
- Виды твердого топлива:Твердое
- Водяной контур:Нет
- Гарантийный срок:5 лет
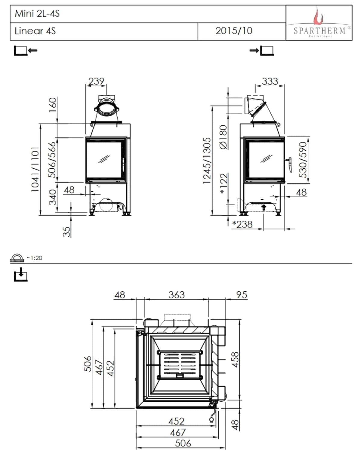
- Глубина:506 мм
- Показать все характеристики
Каминная топка Spartherm Mini 2L / 2R с угловым цельным стеклом обладает не только поразительным дизайном, но также соответствует и распространенному представлению о немецком качестве. Всё в этой топке – от технической до эстетической стороны – соответствует требованиям к продукции премиум-класса. Камин оснащен самозакрывающейся дверцей с механизмом бокового открывания, обеспечивающим полную герметичность топочной камеры, а также системой "чистое стекло" и полностью регулируемой системой вторичного дожига, позволяющей достигать высоких показателей теплоотдачи.


Особенности топки Spartherm Mini 2L/R
- Стандартная форма оформления с покрытыми черным термостойким лаком деталями дверки. Решение в привычных классических формах. Удобное обслуживание и уход
- Топка оснащена поворотным чугунным дымосборником для индивидуального направления потоков газа
- Герметичность корпуса достигается отсутствием винтовых и шурупных креплений
- Возможно подключение подачи воздуха на горение извне
- Подача воздуха на первичный и вторичный дожиг регулируется независимо друг от друга. Вторичный дожиг воздуха в топочной камере обеспечивает эффективное сжигание с низким уровнем выброса вредных веществ
- Топка имеет одинарное остекление стеклокерамикой высокой температурной стойкости от лидера мирового рынка SCHOTT. Инфракрасное покрытые обеспечивает защиту от вредного спектра излучения
- Система самоочистки стекла обеспечивает длительный обзор пламени без помех
- Поворотная колосниковая решетка из высококачественного литого материала, которую легко и просто чистить
- Рычаг для управления воздухом одновременно используется для регулировки приточного воздуха, вторичного дожига и системы "чистое стекло". Обладает телескопической механикой, минималистичным дизайном и высокой функциональностью. Для использования регулировки не нужны специальные инструменты, кроме ключа "холодная рука". Регулировочный рычаг почти незаметен и не нарушает органичный внешний вид фасада топки
- Саморегулирующийся замок Smart Close с инновационной системой замыкания, основанной на постоянном прижиме. Механизм затвора расположен снизу и сверху на дверце
- Облицовка топочной камеры не чувствительна к ударам, термостойка и обладает превосходными теплоизоляционными качествами
- Регулируемые ножки предназначены для удобного выравнивания топки, имеют подвижные диски в основании и обеспечивают устойчивое положение топки

Формат начального уровня для угловых каминов. И выбор за вами. В качестве практичных Mini 2L или Mini 2R с самозакрывающейся откидной дверцей он особенно подходит для небольших помещений. В качестве удобного Mini 2LRh с раздвижной дверью вы даже можете открыть переднюю часть с помощью электрического стеклоподъемника (S-ESAM), если хотите.

Каминная топка Spartherm Mini 2L/R в интерьере:



| Вес | 166 кг |
| Виды твердого топлива | Твердое |
| Водяной контур | Нет |
| Гарантийный срок | 5 лет |
| Глубина | 506 мм |
| Диаметр дымохода | 180 мм |
| Количество стекол в дверце | 2 |
| Коэффициент полезного действия | 80 % |
| Мощность номинальная | 7 кВт |
| Наличие шибера | Нет |
| Подключение к дымоходу | Верхнее |
| Производитель | Spartherm |
| Система очистки стекла | Обдув стекла потоком воздуха |
| Способ открытия дверцы топки | боковое |
| Страна производитель | Германия |
| Форма стекла топки | угловое |
| Ширина | 506 мм |
| Высота | 1041 мм |
| Материал топки | сталь, шамот |
Пока не было вопросов.
Теги: каминная топка, стальная, Spartherm






















