Каминная топка Spartherm Varia Ch производитель Spartherm
- Производитель:
- Модель:5676
- 8
- Вес:235 кг
- Виды твердого топлива:Твердое
- Водяной контур:Нет
- Гарантийный срок:5 лет
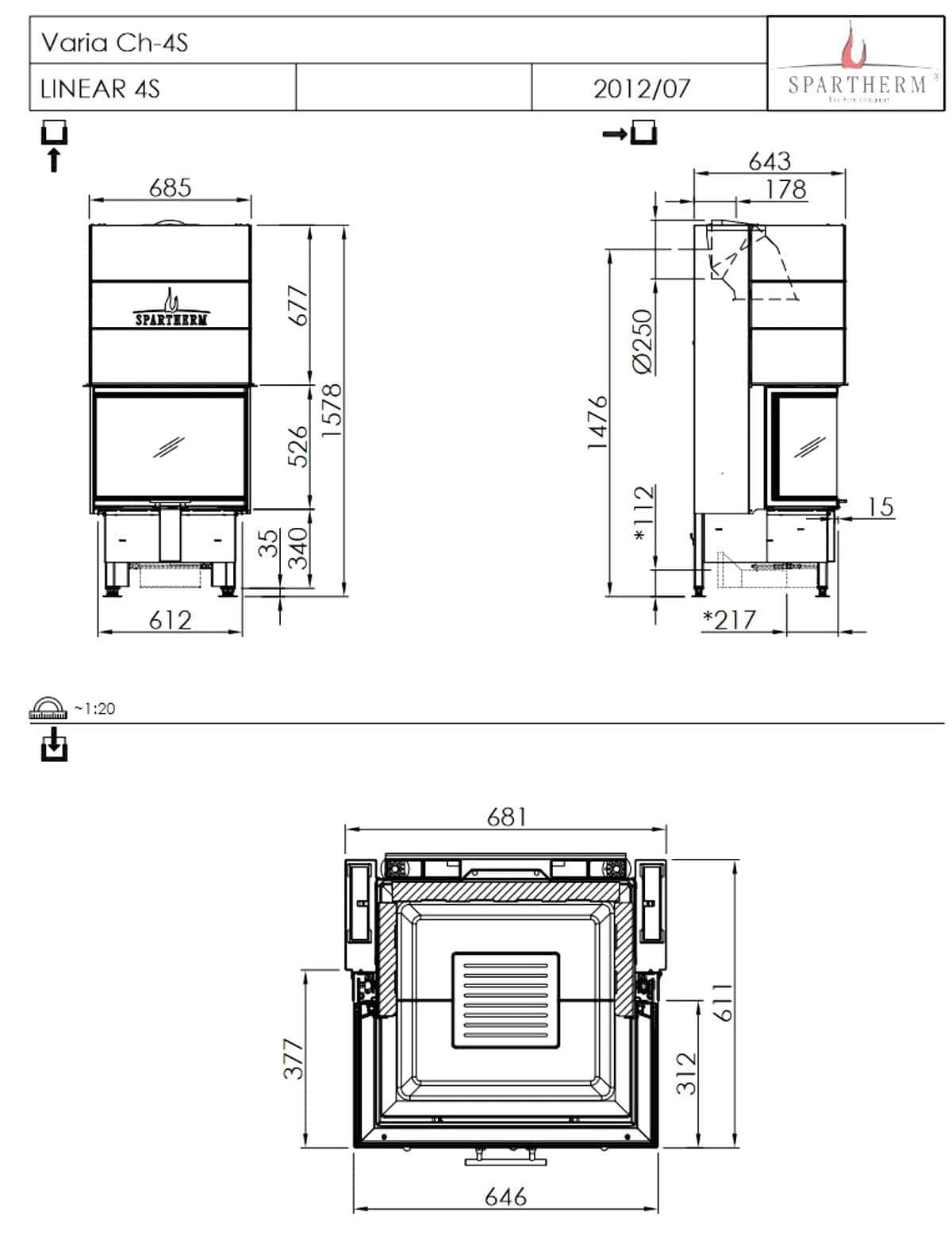
- Глубина:643 мм
- Показать все характеристики
Каминная топка Spartherm Varia Ch с трехсторонним стеклом обладает не только поразительным дизайном, но также соответствует и распространенному представлению о немецком качестве. Всё в этой топке – от технической до эстетической стороны – соответствует требованиям к продукции премиум-класса. Камин оснащен бесшумным подъемным механизмом дверцы, обеспечивающим полную герметичность топочной камеры, а также системой "чистое стекло" и полностью регулируемой системой вторичного дожига, позволяющей достигать высоких показателей теплоотдачи.

Особенности Spartherm Varia Ch
- Стандартная форма оформления с покрытыми черным термостойким лаком деталями дверки. Решение в привычных классических формах. Удобное обслуживание и уход
- Топка оснащена поворотным чугунным дымосборником для индивидуального направления потоков газа
- Современный дизайн - максимально видная топочная часть. Конструкция дверцы выполнена таким образом, чтобы не мешать восприятию живого огня
- Герметичность корпуса достигается отсутствием винтовых и шурупных креплений
- В топке использованы не требующие технического обслуживания термостойкие подшипники и шарикоподшипники скользящего трения. Доступ в контргрузовую шахту возможен через топочную камеру
- Возможно подключение подачи воздуха на горение извне
- Подача воздуха на первичный и вторичный дожиг регулируется независимо друг от друга. Вторичный дожиг воздуха в топочной камере обеспечивает эффективное сжигание с низким уровнем выброса вредных веществ
- Топка оснащена механизмом фиксации дверцы для закладки дров и чистки стекла
- Топка имеет одинарное остекление стеклокерамикой высокой температурной стойкости от лидера мирового рынка SCHOTT. Инфракрасное покрытые обеспечивает защиту от вредного спектра излучения
- Система самоочистки стекла обеспечивает длительный обзор пламени без помех
- Поворотная колосниковая решетка из высококачественного литого материала, которую легко и просто чистить
- Рычаг для управления воздухом одновременно используется для регулировки приточного воздуха, вторичного дожига и системы "чистое стекло". Обладает телескопической механикой, минималистичным дизайном и высокой функциональностью. Для использования регулировки не нужны специальные инструменты, кроме ключа "холодная рука". Регулировочный рычаг почти незаметен и не нарушает органичный внешний вид фасада топки
- Подъемная рукоятка красивой и удобной формы выполнена из нержавеющей стали
- Дверца оснащена замком Soft Close, имеющим европейский патент. Жесткие, не подверженные перекосу дверные профили обеспечивают герметичность топочной камеры
- Облицовка топочной камеры не чувствительна к ударам, термостойка и обладает превосходными теплоизоляционными качествами
- Регулируемые ножки предназначены для удобного выравнивания топки, имеют подвижные диски в основании и обеспечивают устойчивое положение топки

Эти каминные топки сделают ваш открытый огонь в центре внимания. Вы можете увидеть игру пламени через три прекрасных стекла. Благодаря встроенной системе промывки лобового стекла этот вид остается четким долгое время. Остекление двери камеры сгорания имеет скрытую рамку и черный рисунок по краю, который визуально обрамляет пламя. С выбираемым механизмом электрического стеклоподъемника (S-ESAM) вы открываете переднюю панель электрически, а цифровая система управления S-Thermatik NEO помогает вам в правильном обращении с огнем.

Каминная топка Spartherm Varia Ch в интерьере:




| Вес | 235 кг |
| Виды твердого топлива | Твердое |
| Водяной контур | Нет |
| Гарантийный срок | 5 лет |
| Глубина | 643 мм |
| Диаметр дымохода | 200 мм |
| Количество стекол в дверце | 3 |
| Коэффициент полезного действия | 80 % |
| Мощность номинальная | 9 кВт |
| Наличие шибера | Нет |
| Подключение к дымоходу | Верхнее |
| Производитель | Spartherm |
| Система очистки стекла | Обдув стекла потоком воздуха |
| Способ открытия дверцы топки | Подъём вверх |
| Страна производитель | Германия |
| Форма стекла топки | трехстороннее |
| Ширина | 685 мм |
| Высота | 1578 мм |
| Материал топки | сталь, шамот |
Пока не было вопросов.
Теги: каминная топка, стальная, Spartherm

























