Топка Cheminees Philippe 777-2V PR производитель Cheminees Philippe
- Производитель:
- Модель:9199
- 1
- Глубина:501 мм
- Ширина:804 мм
- Высота :1325 мм
- Материал топки:чугун
- Вторичный дожиг:да
- КПД:76,2 %
- Номинальная мощность:13 кВт
- Стекло:угловое
- Диаметр подключения дымохода:230 мм
- Показать все характеристики
Cheminees Philippe 777-2V PR - модель угловой каминной топки из чугуна. Имеет функциональный и элегантный дизайн, который легко впишется в любой интерьер.
Каминная вставка с угловым стеклянным фасадом открывает широкий обзор пламени и позволяет бесконечно любоваться завораживающим видом на огонь. Благодаря системе "чистое стекло", сажа не оседает на стекло и смотровое окно остается чистым в течение всего топочного процесса. Несмотря на небольшие размеры, такая топка способна нагревать большие помещения и поддерживать комфортное тепло длительное время.
Cheminees Philippe 777-2V PR оснащена подъемом дверцы вверх.
Поддерживается режим длительного горения.
Она эффективная и легкая в эксплуатации.
Номинальная мощность - 13 кВт.
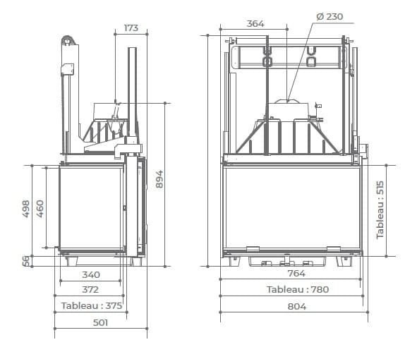
Каминная топка Cheminees Philippe 777-2V PR чертеж:

| Глубина | 501 мм |
| Ширина | 804 мм |
| Высота | 1325 мм |
| Материал топки | чугун |
| Вторичный дожиг | да |
| КПД | 76,2 % |
| Номинальная мощность | 13 кВт |
| Стекло | угловое |
| Диаметр подключения дымохода | 230 мм |
| Вес товара | 207 кг |
Пока не было вопросов.
Теги: дровяные, топки, камины, cheminees philippe




























