Топка Hoxter WHE 37/50a с водным контуром производитель Hoxter
- Производитель:
- Модель:7705
- 6
- Вес:120 кг
- Виды твердого топлива:Дрова
- Водяной контур:Да
- Вторичный дожиг:Да
- Гарантийный срок:5 лет
- Мощность печи:10,9-25,5 кВт
- Показать все характеристики
Описание топки с водным контуром Hoxter WHE 37/50a
Мощность - 10,9 - 25,5 кВт;
Эффективность 85%;
Расшифровка названия продукта:
HAKA - топка с прямым стеклом.
ECKA - топка с угловым стеклом.
UKA - топка с П-образным стеклом.
GT - печная дверца.
GT2 - печная дверца с основанием.
WHE - водонагревательная топка.
h - подъёмная дверца.
S - топка с уменьшенной глубиной.
T - камин туннельный.
a - дополнительная растопочная дверца.
G - камин с большей камерой сгорания.
N - керамическая камера дожига.
ks - печные дверцы с уменьшенной глубиной.
Цена указана за модель WHE 37/50a без дополнительных опций.
Печная топка с водным контуром Hoxter WHE 37/50a в интерьере
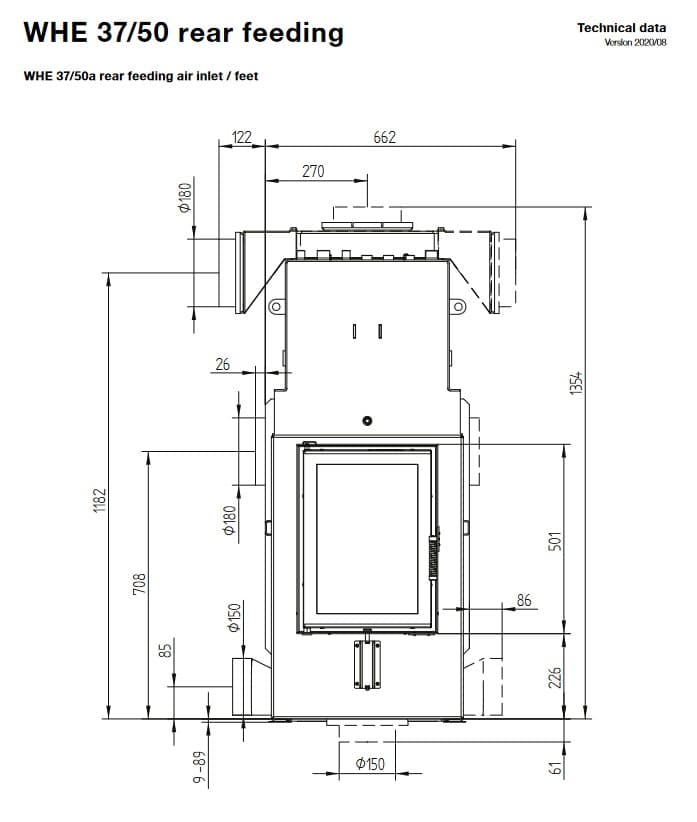
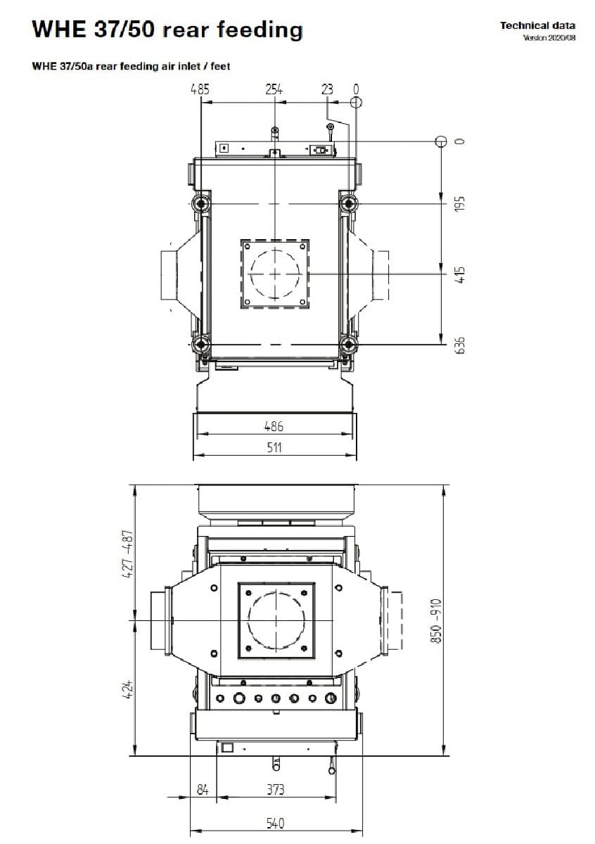
Габаритные размеры топки с водным контуром Hoxter WHE 37/50a
| Вес | 120 кг |
| Виды твердого топлива | Дрова |
| Водяной контур | Да |
| Вторичный дожиг | Да |
| Гарантийный срок | 5 лет |
| Глубина | 850 мм |
| Наличие шибера | Нет |
| Подключение к дымоходу | Верхнее |
| Подъем стекла вверх | Нет |
| Производитель | Hoxter |
| Система очистки стекла | Да |
| Страна производитель | Чехия |
| Тип остекления | Прямое |
| Ширина | 662 мм |
| Высота | 1314 мм |
| Материал топки | Сталь |
| Мощность печи | 10,9-25,5 кВт |
Пока не было вопросов.
Теги: каминная топка, чугунная, Hoxter




























