Топка-камин Brunner ECK BKH 42-66-42 DTR производитель Brunner
- Производитель:
- Модель:9818
- 1
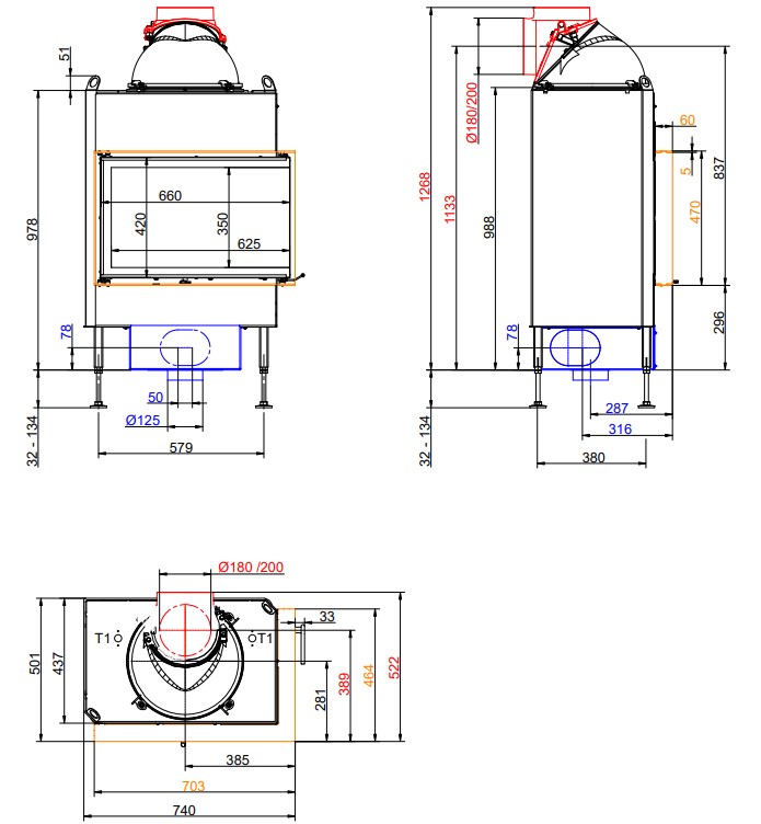
- Диаметр дымохода:180, 200 мм
- Вес:176/186 кг
- Виды твердого топлива:Дрова
- Вторичный дожиг:есть
- Гарантийный срок:60 (мес)
- Забор воздуха в топку :Из внешней среды (опция)
- Способ открытия дверцы топки:боковое
- размер поленьев:25 - 33 см
- Глубина топки:33 см
- Дверца:42x66x42 см
- Способ горения::подовое
- Мощность (кВт):9 кВт
- Показать все характеристики
Предлагаем вашему вниманию топку-камин Brunner ECK BKH 42-66-42 DTR новой серии Green.
Эта серия сочетает в себе целый ряд непревзойденных преимуществ: более 40 лет опыта и инженерного искусства, очень эффективные и безвредные для климата камины, сделанные в Германии.
Brunner ECK BKH 42-66-42 DTR - стальная угловая правосторонняя топка с боковым открытием.
Новая чаша камеры сгорания не требует колосника или зольника. В то же время воздух для горения (первичный воздух) подается непосредственно в камеру сгорания через тяжелые и, соответственно, прочные литые элементы. Этот инновационный поток воздуха для горения обеспечивает идеальную форму пламени с минимальными выбросами.
Новая шамотная облицовка не только выглядит более гладкой и современной, она еще и модульная. Это снижает стоимость запасных частей, если в какой-то момент потребуется заменить внутреннюю обшивку. Мелкопористая поверхность также обеспечивает на 15% лучшую теплоизоляцию. Опционально доступна облицовка камеры сгорания черными литыми пластинами с рифленым видом, которые с обратной стороны изолированы вермикулитом толщиной 25 мм.

Каминная топка может быть оснащена дымосборниками различных типов:
Чугунный дымосборник D 200 мм;
Чугунный дымосборник с чугунными кольцами D 200 мм;
Низкий чугунный дымосборник;
Модульный дымосборник с теплонакопительными кольцами MAS.
Цена указана за топку с чугунным дымосборником.

В качестве опции топка может быть оснащена каталитическим фильтром, устанавливаемым в дымосборнике. Он снижает выбросы не сгоревших частиц в дымоход, тем самым улучшая экологичность топки.
Каждое устройство серии BKH 5.0 на заводе оснащено литым кольцом для размещения каталитического модуля. Это означает, что модернизация возможна в любое время.
Также на топку можно установить систему автоматического контроля горения EAS (повышает эффективность сжигания дров, контролирует процесс горения, путем автоматической регулировки подачи воздуха в топку).

Камины Brunner обычно считаются довольно дорогим удовольствием. Это, конечно, только половина правды. Потому что в экспертных кругах также бесспорно то, что устройства представляют собой абсолютный топ с точки зрения качества и изготовления. Будь то благородный архитектурный камин, камин в классическом стиле, современный угловой камин или панорамный камин с большим остеклением - с камином от Brunner вы выбираете совершенство до мельчайших деталей.
Принимая решение о покупке, зависит от вас, насколько вы цените это преимущество с точки зрения качества и долговечности.
| Диаметр дымохода | 180, 200 мм |
| Вес | 176/186 кг |
| Виды твердого топлива | Дрова |
| Вторичный дожиг | есть |
| Гарантийный срок | 60 (мес) |
| Забор воздуха в топку | Из внешней среды (опция) |
| Подключение к дымоходу | Верхнее |
| Производитель | Brunner |
| Система очистки стекла | Обдув стекла потоком воздуха |
| Страна производитель | Германия |
| Форма стекла топки | угловое |
| Материал топки | шамот чугун (опция) |
| Способ открытия дверцы топки | боковое |
| размер поленьев | 25 - 33 см |
| Глубина топки | 33 см |
| Дверца | 42x66x42 см |
| Способ горения: | подовое |
| Мощность (кВт) | 9 кВт |
Пока не было вопросов.































