Каминная топка Jydepejsen Sigma Duplex производитель Jydepejsen
- Производитель:
- Модель:9896
- 1
- Мощность номинальная :8.5 кВт
- Система очистки стекла :да
- Тип топки:туннельная
- КПД (%):77 %
- Высота:910 мм
- Глубина:470 мм
- Ширина:1120 мм
- Вес:143 кг
- Вид топлива:дрова, брикеты
- Футеровка:вермикулит
- Показать все характеристики
Jydepejsen Sigma Duplex - туннельная каминная вставка в изысканном стильном дизайне.
Модель предполагает возможность забора свежего воздуха извне и соединения для теплопередачи.
Jydepejsen Sigma оснащена DuplicaAir. Это уникальная система управления воздухом, с помощью которой вы можете мгновенно увеличивать или уменьшать интенсивность пламени. Таким образом, вы можете решить, сколько тепла должно исходить от вашего камина.
Дверца в современном широкоформатном дизайне имеет функцию самозапирания и длинную ручку по всей высоте двери.
Jydepejsen Sigma Duplex оснащена системой чистое стекло, благодаря которой стекло дверцы остается долгое время чистой.
Топка оснащена возможностью подвода воздуха извне.

Sigma Duplex обеспечивает потрясающую целостность между комнатами или перегородками. Печь встраивается в существующую стену или приобретается со стеной из талькохлорита (Sigma Titan), и ваш дом приобретает двухмерное ощущение, где огонь становится видимым с двух сторон.
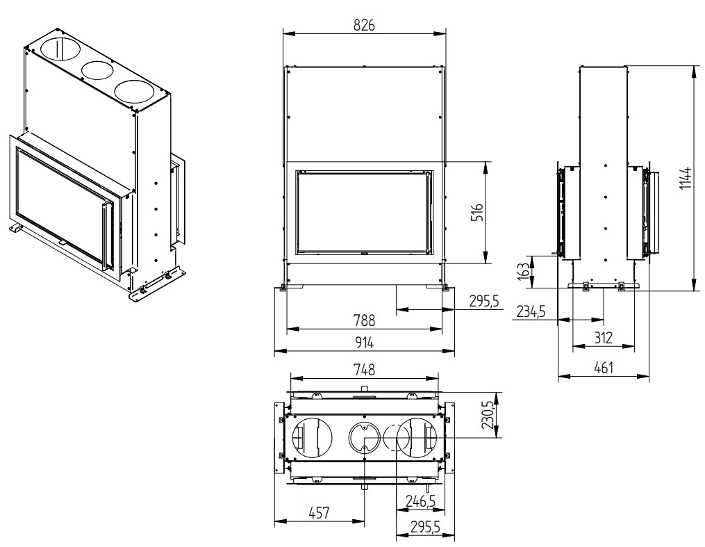
Чертеж каминной топки Jydepejsen Sigma Duplex:


Jydepejsen уже более 40 лет создает инновационные и исключительные датские дровяные камины. Компания Jydepejsen на 100% датская, и печи и камины спроектированы известными датскими архитекторами и дизайнерами мебели, которые создают неординарные продукты. Камины отличаются стильным дизайном, ориентированным на простоту эксплуатации и экологичность.
| Мощность номинальная | 8.5 кВт |
| Система очистки стекла | да |
| Тип топки | туннельная |
| КПД (%) | 77 % |
| Высота | 910 мм |
| Глубина | 470 мм |
| Ширина | 1120 мм |
| Вес | 143 кг |
| Вид топлива | дрова, брикеты |
| Водяной контур | нет |
| Диаметр дымового патрубка | 150 мм |
| Длительное горение | да |
| Материал топки | сталь |
| Материалы корпуса | сталь |
| Производитель | Jydepejsen (Дания) |
| Футеровка | вермикулит |
Пока не было вопросов.
Теги: каминная топка, дровяная, Jydepejsen




























