Каминная топка KOBOK Chopok L 84, LD 840×570 производитель Kobok
- Производитель:
- Модель:9549
- 6
- Вторичный дожиг:есть
- Подвод воздуха извне:есть
- Система очистки стекла :есть
- Страна производитель:Словакия
- Открывание двери :в сторону
- Подключение дымохода:верхнее
- Материал корпуса:сталь
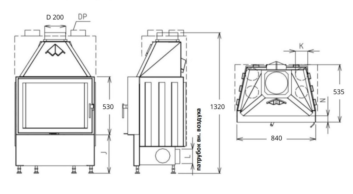
- Внешний размер:840x535x1320 мм
- КПД:77 %
- Номинальная мощность:11,5 кВт
- Объём отапливаемого помещения:201-250 м3
- Стекло:прямое
- Топливо:дрова
- Показать все характеристики
Каминная топка KOBOK Chopok L 84, LD 840×570 - каминная топка из высококачественной жаропрочной стали с прямым остеклением и открыванием дверцы в сторону.
Снаружи топка покрыта краской senotherm® UHT-HYDRO - системой покрытия исключительно на водной основе, стойкой к высоким температурам. Это означает, что при первом использовании нет дыма и запаха.
Внутри каминная топка защищена толстыми шамотными элементами, а конструкция корпуса выполнена таким образом, чтобы не было коробления металла при нагревании.
У KOBOK Chopok L 84 чугунные колосник и горловина дымохода.
Регулируемые ножки – позволяют установить камин четко по уровню.
Имеется патрубок подвода внешнего воздуха.
Особенности и преимущества:
Дополнительные ребра жесткости.
Повышают прочность конструкции и существенно улучшают теплообмен.
Высокий дымосборник.
Укомплектован двойным дефлектором, обеспечивает задержку дымовых газов и извлечение дополнительного тепла из них.
Система "Чистое стекло".
В топках фирмы KOBOK внедрена самая эффективная система "чистое стекло". Воздух предварительно нагревается в специальных каналах, а затем подается на стекло по периметру через специальные диффузоры. Внутри топки создается мощная воздушная завеса, которая не дает оседать продуктам горения на стекле.
Качественный, толстый шамот.
Защищает стальной корпус от прямого контакта с огнем, повышает температуру горения и накапливает тепло.
Возможность использования в закрытых системах.
Технические характеристики:
Номинальная мощность: 11,5 кВт
КПД: 77%
Внешние размеры Ш×Г×В: 840×535×1320 мм
Диаметр выхода дымовых газов: 200 мм
Расход топлива: 3,7 кг/ч
Вес: 255 кг

| Вторичный дожиг | есть |
| Подвод воздуха извне | есть |
| Система очистки стекла | есть |
| Страна производитель | Словакия |
| Открывание двери | в сторону |
| Материал топки | шамот |
| Подключение дымохода | верхнее |
| Материал корпуса | сталь |
| Внешний размер | 840x535x1320 мм |
| КПД | 77 % |
| Номинальная мощность | 11,5 кВт |
| Объём отапливаемого помещения | 201-250 м3 |
| Стекло | прямое |
| Диаметр подключения дымохода | 200 мм |
| Вес товара | 255 кг |
| Топливо | дрова |
Пока не было вопросов.
Теги: каминная топка, дровяная, стальная, KOBOK

























