Каминная топка La Nordica Inserto 80 EPS Wide производитель La Nordica
- Производитель:
- Модель:9939
- 3
- Вторичный дожиг:да
- Номинальная мощность (кВт) :8.8 кВт
- Расход твердого топлива:2,4 кг/ч
- Система очистки стекла :да
- Объем помещения (м3):252 м3
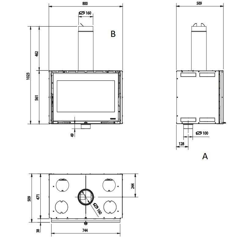
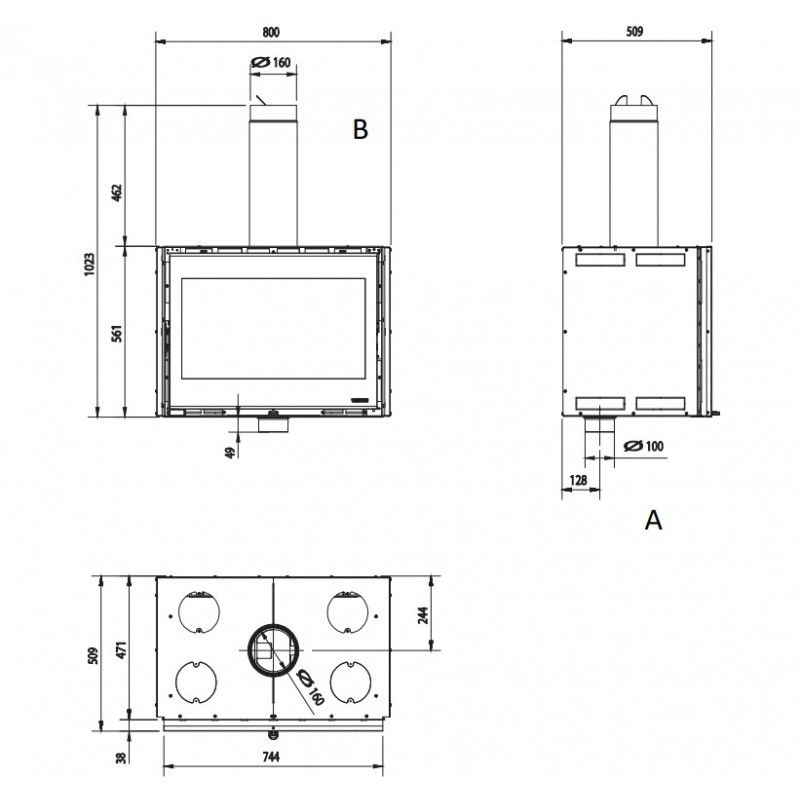
- Высота:1023 мм
- Глубина:509 мм
- Ширина:800 мм
- Вес:155 кг
- Вид топлива:дрова
- Показать все характеристики
La Nordica Inserto 80 EPS Wide - высококачественная каминная вставка с системой рекуперации тепла.

Преимущества топки Nordica Inserto 80 EPS Wide:
-Каминная топка способна отопить помещение объемом 252 м3;
-Система ERS для рекуперации тепла.
-Экологичность каминной топки обеспечивает система вторичного дожига, которая обеспечивает чистое горение и уменьшает выброс отработанных газов в окружающую среду;
-Чугунная решетка и дверца G20;
-Высококачественные чугунные двери долговечны и всегда обеспечивают идеальную герметизацию. Открываются в сторону (могут как влево, так и вправо);
-Дверца изготовлена из высокопрочной стеклокерамики, которая выдерживает температуру до 750°C;
-Система «чистого стекла» сохраняет чистоту стеклянной дверцы надолго;
-Для работы изделие использует твердое топливо: дрова и брикеты. Расход топлива — 2,4 кг/час;
-Уход за топкой упрощается, благодаря удобному выдвижному зольному ящику;
-Каминная топка отличается такой характеристикой как низкое потребление топлива наряду с высоким КПД;
-Топка надежна и безопасна в эксплуатации;
-Футеровка топки Nordiker (специальный высокопрочный материал, устойчивый к воздействию высоких температур во время горения);
-Внешний воздухозаборник (система воздухозабора, которая всасывает свежий воздух снаружи непосредственно в систему регулирования горения топки прибора);
-Без вентилятора (опционально вентиляция с комплектом Wind Air).

Вставки предназначены для замены старого открытого камина. Они увеличивают производительность, как с точки зрения тепловой мощности, так и с точки зрения выбросов.
Каминная вставка La Nordica - идеальное решение для вашего камина.
Тепло, атмосфера, стиль - свет горящего огня всегда создает настоящее волшебство.
Но у каждого помещения есть свои потребности, и La Nordica предлагает каждому решение для эффективного и экологичного отопления дома.
| Вторичный дожиг | да |
| Номинальная мощность (кВт) | 8.8 кВт |
| Расход твердого топлива | 2,4 кг/ч |
| Система очистки стекла | да |
| Объем помещения (м3) | 252 м3 |
| Высота | 1023 мм |
| Глубина | 509 мм |
| Ширина | 800 мм |
| Вес | 155 кг |
| Вид топлива | дрова |
| Водяной контур | нет |
| Диаметр дымового патрубка | 160 мм |
| КПД | 85.5 % |
| Материал топки | Nordiker |
| Подключение к дымоходу | Верхнее |
| Производитель | La Nordica (Италия) |
Пока не было вопросов.
Теги: каминная топка, дровяная, La Nordica



























