Каминная топка Nordflam LB 800 PW с водяным контуром производитель Nordflam
- Производитель:
- Модель:4936
- 1
- Вес:163 кг
- Водяной контур:да
- Вторичный дожиг:нет
- Наличие шибера :Есть
- Номинальная мощность (кВт) :14
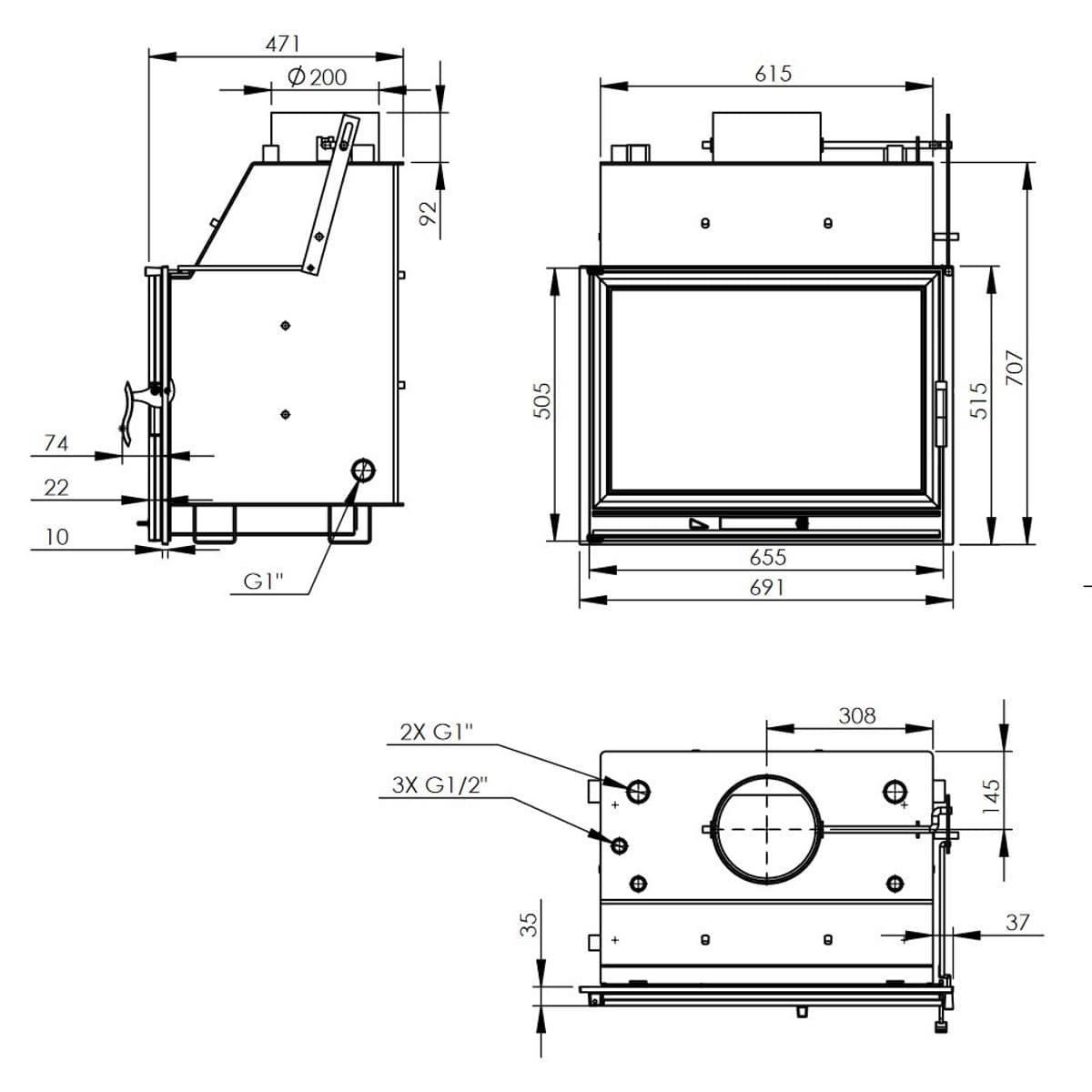
- Ширина (мм):691
- Показать все характеристики
Каминная топка с водяным контуром Nordflam LB800 PW с водяным контуром изготовлена из стали, футерована шамотным кирпичом, а дверца изготовлена из чугуна. Мощность топки 14 кВт. Мощность водяного контура 7,5 кВт. Объем водяного контура 31 л. Топка LB800 укомплектована шибером для лучшей регулировки процесса горения, а также для предотвращения выхода тепла в дымоход. Есть возможность подключения адаптера подвода внешнего воздуха.
Nordflam LB800 PW с водяным контуром укомплектована чугунной колосниковой решеткой и зольным ящиком, а на фасаде топки расположена стильная заслонка первичной подачи воздуха под колосник. Ручка у каминной топки очень удобная, на нее нанесено специальное термостойкое покрытие, которое приятное на ощупь и очень хорошо смотрится. Механизм закрывания классический рычажного типа, самый надежный и проверенный годами.


| Вес | 163 кг |
| Водяной контур | да |
| Вторичный дожиг | нет |
| Наличие шибера | Есть |
| Номинальная мощность (кВт) | 14 |
| Подвод воздуха извне | Опция |
| Подъем стекла вверх | Нет |
| Производитель | NordFlam |
| Тип остекления | Прямое |
| Диаметр дымохода (мм) | 200 |
| Страна производства | Польша |
| Высота (мм) | 799 |
| Глубина (мм) | 471 |
| Материал топки | шамот |
| Ширина (мм) | 691 |
Пока не было вопросов.

























