Печь камин La Nordica Verona XXL производитель La Nordica
- Производитель:
- Модель:7323
- 3
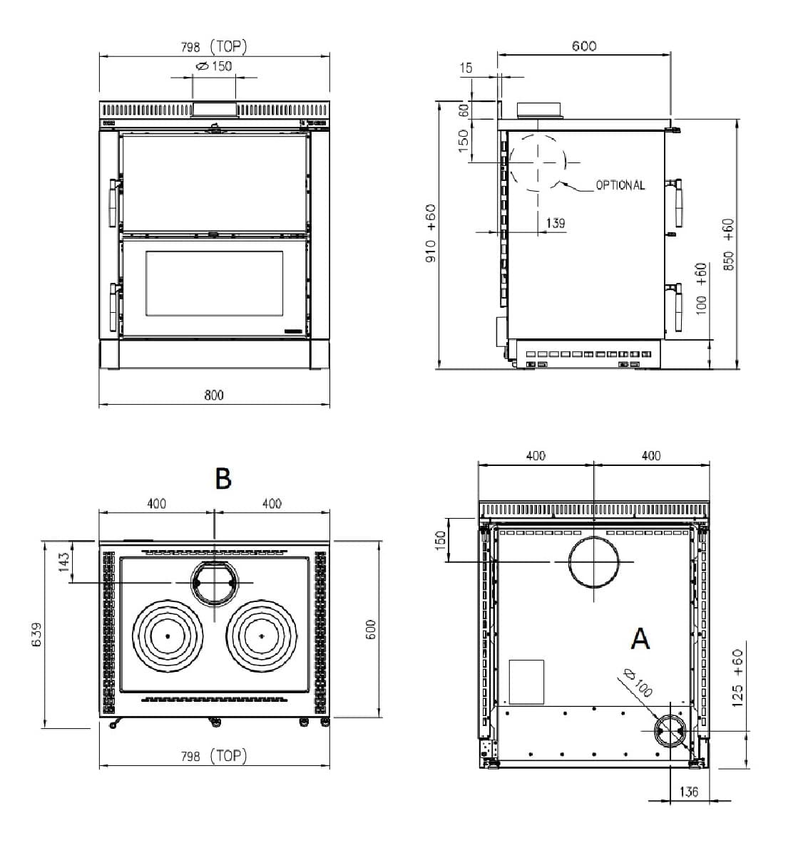
- Высота:910 мм
- Глубина:600 мм
- Ширина:800 мм
- Варочная поверхность:да
- Вес:161 кг
- Показать все характеристики
Ключевые особенности печи-камина Nordica Verona XXL:
Модель Nordica Verona является пристенным камином, может быть основным или дополнительным источником тепла. Чугунная топка для камина отличается длительным сроком службы и высокой надежностью.
Обладатели печного отопления рано или поздно сталкиваются с тем что приходит в негодность плита чугунная для печи купить которую конечно достаточно легко, а вот заменить занятие не самое легкое. Но, прогресс не стоит на месте, на смену привычным печам, пришли печи камины. Отлично справляющиеся как с обогревом помещения, так и выполняющие функции плиты.
Преимущества «Verona»:
- стильный дизайн;
- жаропрочный чугун и стекло выдерживают высокую температуру;
- варочная плита
- духовка
Печь камин «La Nordica Verona» может использоваться как альтернатива кухонной плиты, так и полностью самостоятельно обогревать жилое помещение.

Благодаря жаропрочному стеклу, выдерживающему температуру до 750⁰ и надежно защищающему от открытого огня, полюбоваться на горящие дрова можно не опасаясь за свою безопасность. Подбросить которые можно как спереди, так и сбоку корпуса.
Достойное дополнение любого интерьера, а главное о поиске новой плиты для печи в Минске можно не беспокоиться. Ведь все детали «La Nordica Verona» высокого качества.
- Покрытие из нержавеющей или эмалированной стали
- Печь с клапаном избыточного давления
- Колосниковая решетка из чугуна большой толщины
- Возможность выбора любого расположения выхода дымохода
- Дверца топки чугунная с двойным стеклом
- Возможность забора воздуха снаружи (д.100 мм)
- Плита и кольца из полированного чугуна большой толщины
- Реверсивные дверцы
- Высота верха 3 см
- Большая топка из материала Nordiker с хорошим обзором огня, возможность использования дров длиной 50 см
- Возможность установки между элементами мебели без опционального комплекта
- Чугунная дверца топки с внутренним каналом воздуха для горения для обеспечения лучшей очистки и долговечности стеклокерамики
- Фасад из эмалированной стали для большей прочности и долговечности
- Крупногабаритная эмалированная духовка 68 л, подсветка с эргономичным устройством включения
- Дверца духовки с двойным стеклом и прокладками из нержавеющей стали
- Хромированная решетка с новыми выдвижными
направляющими

| Высота | 910 мм |
| Глубина | 600 мм |
| Ширина | 800 мм |
| Варочная поверхность | да |
| Вес | 161 кг |
| Вид топлива | дрова |
| Водяной контур | нет |
| Диаметр дымового патрубка | 150 мм |
| КПД | 78,4 % |
| Материал топки | чугун |
| Материалы корпуса | чугун, сталь |
| Мощность печи | 8,0 кВт |
| Подключение к дымоходу | верхнее |
| Расположение печи-камина | Пристенные |
| Производитель | La Nordica (Италия) |
Пока не было вопросов.
Теги: печь-камин, дровяной, La Nordica





















