- ...
- Главная
- Каминные топки
- Топки Jotul для камина
- Топка Jotul I 18 Harmony производитель Jotul
Топка Jotul I 18 Harmony производитель Jotul
-
Рейтинг:
- Производитель:
- Модель:2263
- 99
- Вариант подключения дымохода:верхнее, заднее
- Вес:186 кг
- Вторичный дожиг:да
- Гарантийный срок:10 лет
- Диаметр выходного патрубка:200 мм
- Показать все характеристики
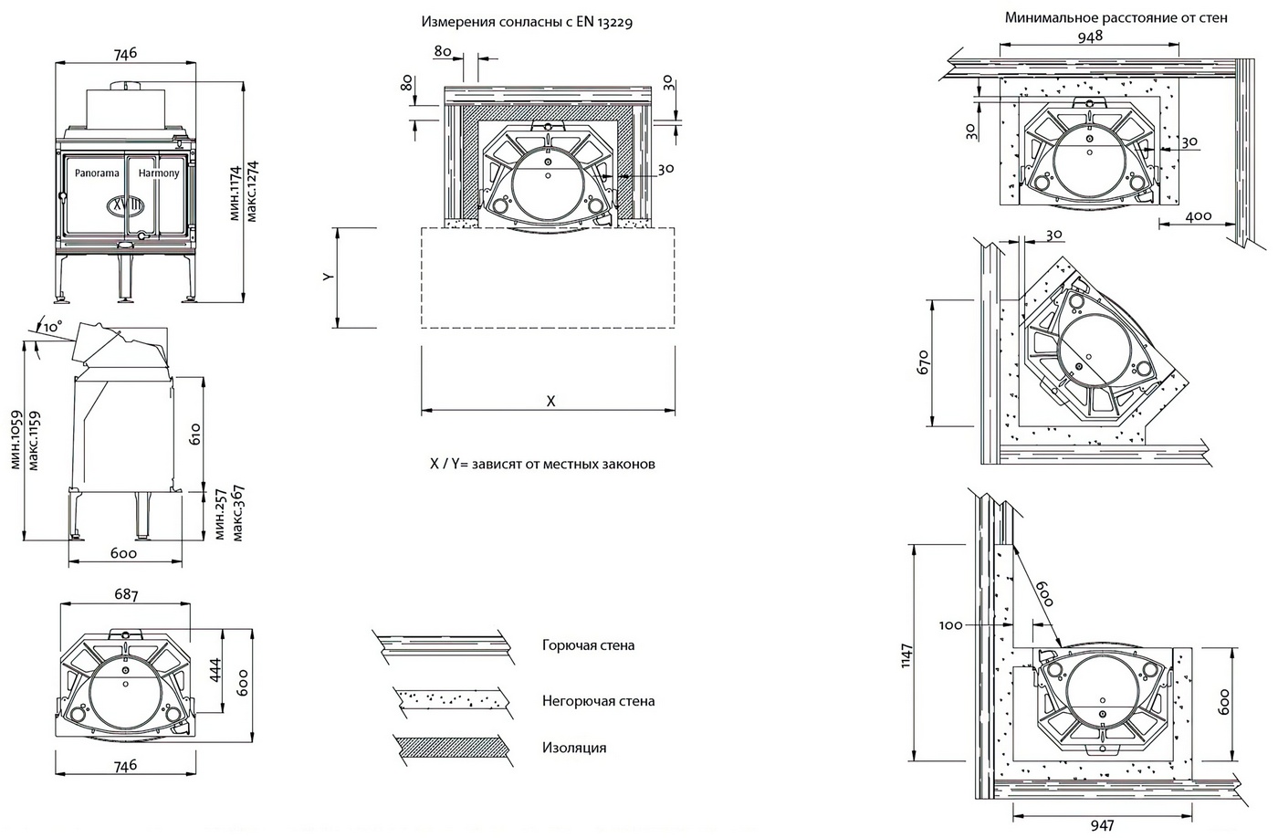
Чугунная каминная топка Jotul I 18 Harmony, с традиционным видом горения, покрыта сине-чёрной жаростойкой эмалью, обеспечивает мощность при среднем уровне горения 10 кВт, рассчитана на отопление помещений до 200 м2. Каминная топка Jotul I 18 Harmony – одна из самых популярных топок норвежской компании Jotul.

Топку для камина Jotul I 18 Harmony отличает наличие двух складывающихся дверец с жаропрочными стеклами, дающих возможность смотреть на открытое пламя. Благодаря оригинальной конструкции топки, хороших отопительных возможностей Jotul I 18 заслужила популярность у потребителей. Эта топка рассчитана на использование в доме, где нет основного источника тепла. В режиме медленного горения она работает до 12 часов при одной закладке дров, что позволяет не подбрасывать дрова ночью. Конструкция топки дает большую гибкость при выборе облицовок и порталов: это немало способствуют регулируемые ножки.


Внутри предусмотрены ограничители, не позволяющие скатываться дровам к стеклу. В Jotul I 18, конечно же, имеется система самоочистки стекла, возможность подключения доступа воздуха извне, возможность установки теплонакопительной массы, возможность подключения водонагревателя.

- Большая чугунная топка
- Система очистки стекла горячим воздухом
- Большая камера сгорания
- Высокая отопительная мощность
| Вариант подключения дымохода | верхнее, заднее |
| Вес | 186 кг |
| Вторичный дожиг | да |
| Гарантийный срок | 10 лет |
| Диаметр выходного патрубка | 200 мм |
| Длительность горения | продолжительная |
| КПД | 77 % |
| Материал изготовления | чугун |
| Наличие зольного ящика | да |
| Номинальная мощность | 10 кВт |
| Объём отапливаемого помещения | до 400 м куб. |
| Отделка печи | антрацид (чёрная краска) |
| Размер дров | 60 см |
| Размеры (В х Ш х Д) | 610x746x600 мм |
| Система очистки стекла | есть |
| Вид топлива | Дрова |
Пока не было вопросов.
Рекомендуемые товары
Вы смотрели
Топка Cheminees Philippe 777 SR
1
Печь-камин Cheminees Philippe Artenay
1
Каминная топка Romotop BASIC 2g 59.50.01 прямое стекло
7
Теги: каминная топка, чугунная, Jotul




























































