- ...
- Главная
- Каминные топки
- Топки Jotul для камина
- Топка Jotul I 520 F производитель Jotul
Топка Jotul I 520 F производитель Jotul
-
Рейтинг:
- Производитель:
- Модель:2265
- 99
- Вариант подключения дымохода:верхнее, заднее
- Вес:110 кг
- Вторичный дожиг:да
- Гарантийный срок:10 лет
- Диаметр выходного патрубка:150 мм
- Показать все характеристики
Современная каминная топка Jotul I 520 F, разработанная с учетом последних технологических достижений, оборудована специальными отражающими панелями. Эти панели служат для увеличения температуры горения внутри камина, что позволяет добиться более интенсивного и яркого пламени. Благодаря этому, камин не только горит, но и создает захватывающее визуальное зрелище, которое привлекает внимание и радует глаз.
Чугунная каминная топка Jotul I 520 F с функцией чистое горение “Clean Burn”, обеспечивает мощность при среднем уровне горения 7 кВт, рассчитана на отопления помещений до 140 м2.

Каминная топка Jotul i520 F состоит из серии моделей: две угловые топки (правую и левую) и центральную топку с тремя стеклянными стенками. Стеклянные стенки камина изготовлены с использованием специального материала, который обладает отражающими свойствами. Этот материал помогает предотвратить накопление сажи, оптимизировать процесс сгорания и тем самым улучшает общую эффективность работы камина.

Несмотря на то, что топка Jotul i520 является довольно крупной по размерам, она обладает высокой производительностью и может работать на даже небольшой мощности 3,5 кВт, что соответствует примерно одному килограмму дров. Это делает ее идеальным выбором для тех, кто ценит экономию ресурсов и энергии.
Подключение к дымоходу верхнее или заднее
Покрытие: чёрное матовое напыление
Встроена система дожигания дыма
Без зольника

Также стоит отметить, что существуют различные дополнительные опции, которые можно добавить к основной модели топки Jotul i520 F. К ним относятся распределитель тёплого воздуха, правая дверь для открывания, аккумулирующая тепло масса и ножки для установки топки. Эти опции могут быть полезны для улучшения комфорта и функциональности камина.
- Чтобы правильно выбрать и купить каминную топку лучше проконсультироваться с квалифицированным специалистом по указанным на сайте телефонам.
| Вариант подключения дымохода | верхнее, заднее |
| Вес | 110 кг |
| Вторичный дожиг | да |
| Гарантийный срок | 10 лет |
| Диаметр выходного патрубка | 150 мм |
| Длительность горения | продолжительная |
| КПД | 77% |
| Материал изготовления | чугун |
| Наличие зольного ящика | нет |
| Номинальная мощность | 7 кВт |
| Объём отапливаемого помещения | от 120 до 360 м куб. |
| Отделка печи | антрацид (чёрная краска) |
| Размер дров | 35 см |
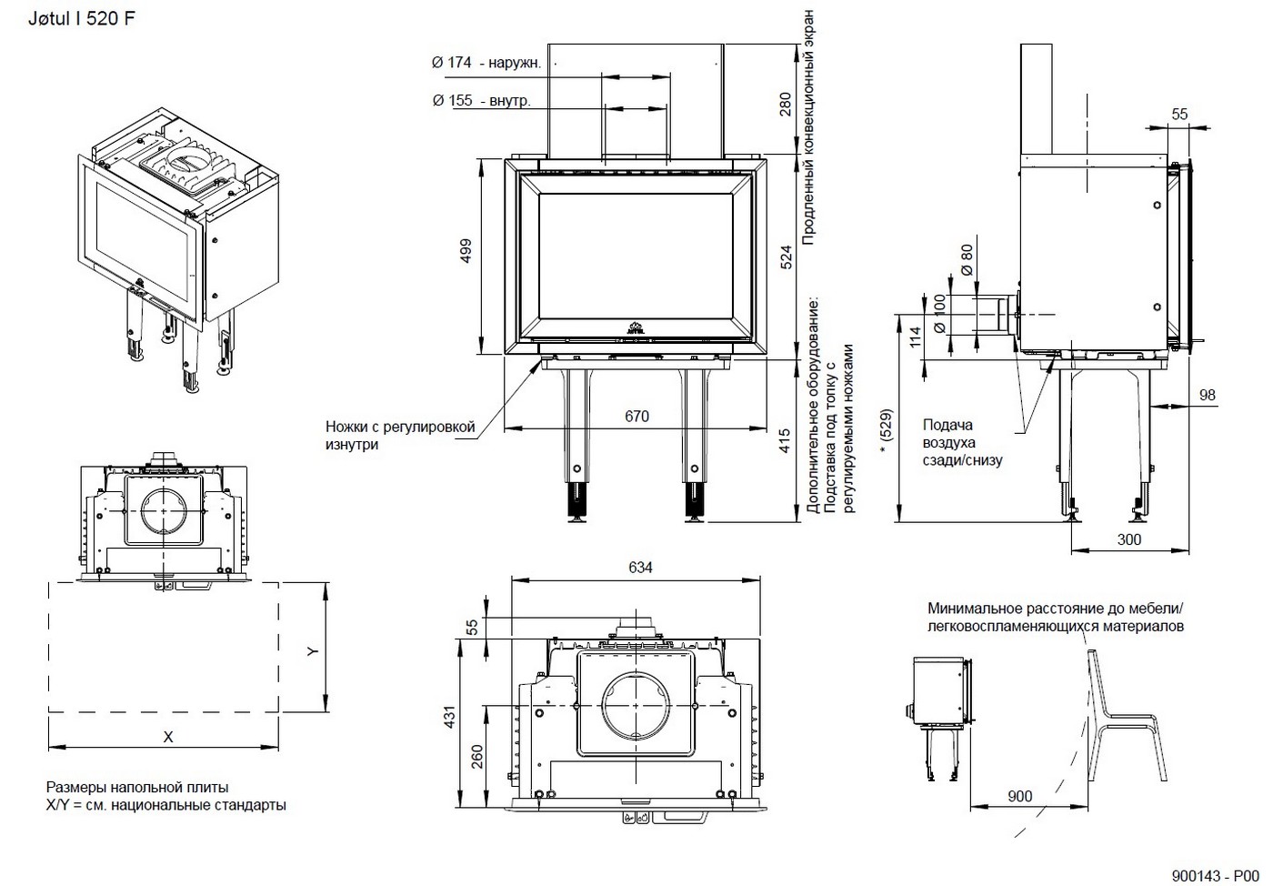
| Размеры (В х Ш х Д) | 524 х 670 х 431 мм |
| Система очистки стекла | есть |
| Вид топлива | Дрова |
Пока не было вопросов.
Рекомендуемые товары
Вы смотрели
Электрокамин RealFlame Ottawa DN с Fobos Lux S BL
6
Печь-камин Cheminees Philippe Dorange
6
Теги: каминная топка, чугунная, Jotul






















































