Форма и функция идеально дополняют друг друга. Его четкие линии делают его впечатляющим объектом из стали и огня. В качестве перегородки перед стеной или посередине комнаты. А7 всегда привлекает внимание.
Печь-камин Spartherm Ambiente A7 производитель Spartherm
- Производитель:
- Модель:5705
- 6
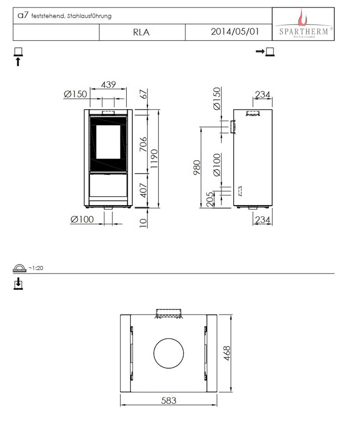
- Высота:1190 мм
- Глубина:468 мм
- Ширина:583 мм
- Варочная поверхность:нет
- Вес:200 кг
- Показать все характеристики
Печь-камин Spartherm Ambiente A7 - впечатляет приятным дизайном и высочайшим качеством изготовления. Все компоненты печи собраны вместе в привлекательной простой форме. Современные технологии обеспечивают приятное тепло в помещении, в котором установлена установка, а простое управление дает вам больше времени, чтобы наслаждаться своим камином.

Модель оснащена патрубком для подключения подачи воздуха на горение с улицы. Забор воздуха на горение с улицы обеспечивает простой розжиг печи и её стабильную работу. Теплонакопительные блоки весом 45 кг обеспечивают длительную теплоотдачу после прогорания дров.
Цена может меняться в зависимости от цвета модели.
Печь-камин Spartherm Ambiente A7 в интерьере:


Цена может меняться в зависимости от цвета и отделки модели.

| Высота | 1190 мм |
| Глубина | 468 мм |
| Ширина | 583 мм |
| Варочная поверхность | нет |
| Вес | 200 кг |
| Вид топлива | дрова, брикеты |
| Водяной контур | нет |
| Диаметр дымового патрубка | 150 мм |
| Длительное горение | да |
| КПД | 80 % |
| Материал топки | сталь, шамот |
| Материалы корпуса | сталь |
| Номинальная мощность | 5,9 кВт |
| Подключение к дымоходу | верхнее |
| Расположение печи-камина | Пристенное, угловое |
| Производитель | Spartherm (Германия) |
Пока не было вопросов.
Теги: печь-камин, дровяной, Spartherm






























