Форма и функция идеально дополняют друг друга. Его четкие линии делают его впечатляющим объектом из стали и огня. В качестве перегородки перед стеной или посередине комнаты. SEO L всегда привлекает внимание.
Печь-камин Spartherm SEO L производитель Spartherm
- Производитель:
- Модель:5734
- 6
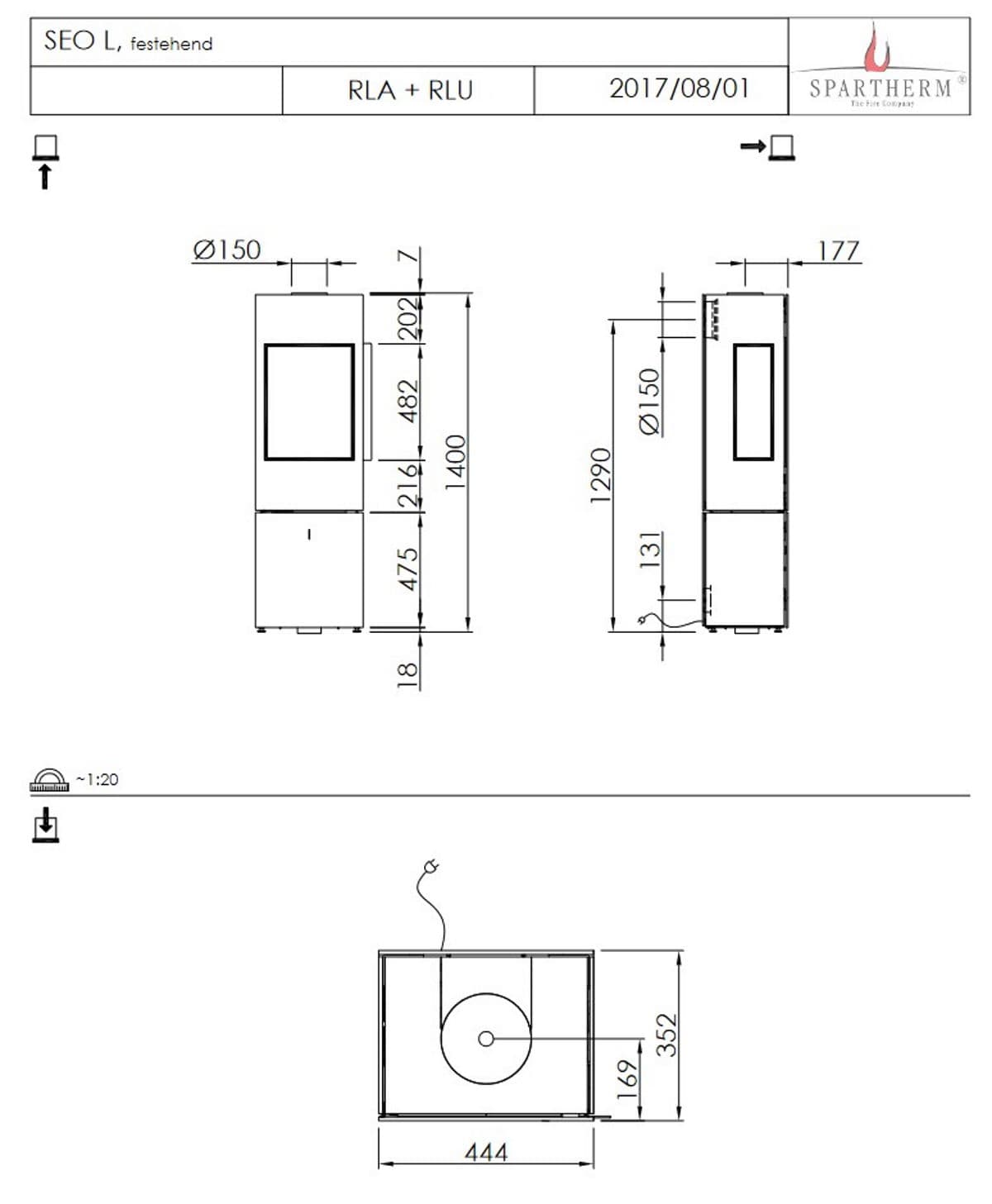
- Высота:1393 мм
- Глубина:352 мм
- Ширина:444 мм
- Варочная поверхность:нет
- Вес:225 кг
- Показать все характеристики
Печь-камин Spartherm SEO L - не только впечатляет своим большим окном, но и привлекает внимание к вашему камину благодаря красивому боковому остеклению. Ваш идеальный вид на огонь с цифровым управлением. С приложением вы можете наслаждаться безопасностью, комфортом и возможностью интеграции в свой умный дом.

Spartherm Seo L - это современная дровяная печь с прямыми четкими линиями. Обзор огня с трех сторон. Компактные размеры сочетаются с высокой производительностью. Система вторичного дожига повышает КПД и способствует меньшему загрязнению дымохода. Дверца выполнена в современном стиле с тонировкой по периметру стекла.
Модель оснащена патрубком для подключения подачи воздуха на горение с улицы. Забор воздуха на горение с улицы обеспечивает простой розжиг печи и её стабильную работу.
Управление всеми режимами горения осуществляется при помощи планшета или смартфона через приложение SEO-App. Вся информация о режимах горения, температуре топочной камеры, мощности выводится на экран Вашего устройства. Система регулировки горения S-Thermatik Neo обеспечивает оптимальную подачу воздуха на горение и температуру.
Печь-камин Spartherm SEO L в интерьере:

Цена может меняться в зависимости от цвета и отделки модели.

| Высота | 1393 мм |
| Глубина | 352 мм |
| Ширина | 444 мм |
| Варочная поверхность | нет |
| Вес | 225 кг |
| Вид топлива | дрова, брикеты |
| Водяной контур | нет |
| Диаметр дымового патрубка | 150 мм |
| Длительное горение | да |
| КПД | 80 % |
| Материал топки | сталь, шамот |
| Материалы корпуса | сталь |
| Номинальная мощность | 5.5 кВт |
| Подключение к дымоходу | верхнее, заднее |
| Расположение печи-камина | Пристенное, угловое |
| Производитель | Spartherm (Германия) |
Пока не было вопросов.
Теги: печь-камин, дровяной, Spartherm

























