Форма и функция идеально дополняют друг друга. Его четкие линии делают его впечатляющим объектом из стали и огня. В качестве перегородки перед стеной или посередине комнаты. Senso S всегда привлекает внимание.
Печь-камин Spartherm Senso S производитель Spartherm
- Производитель:
- Модель:5732
- 6
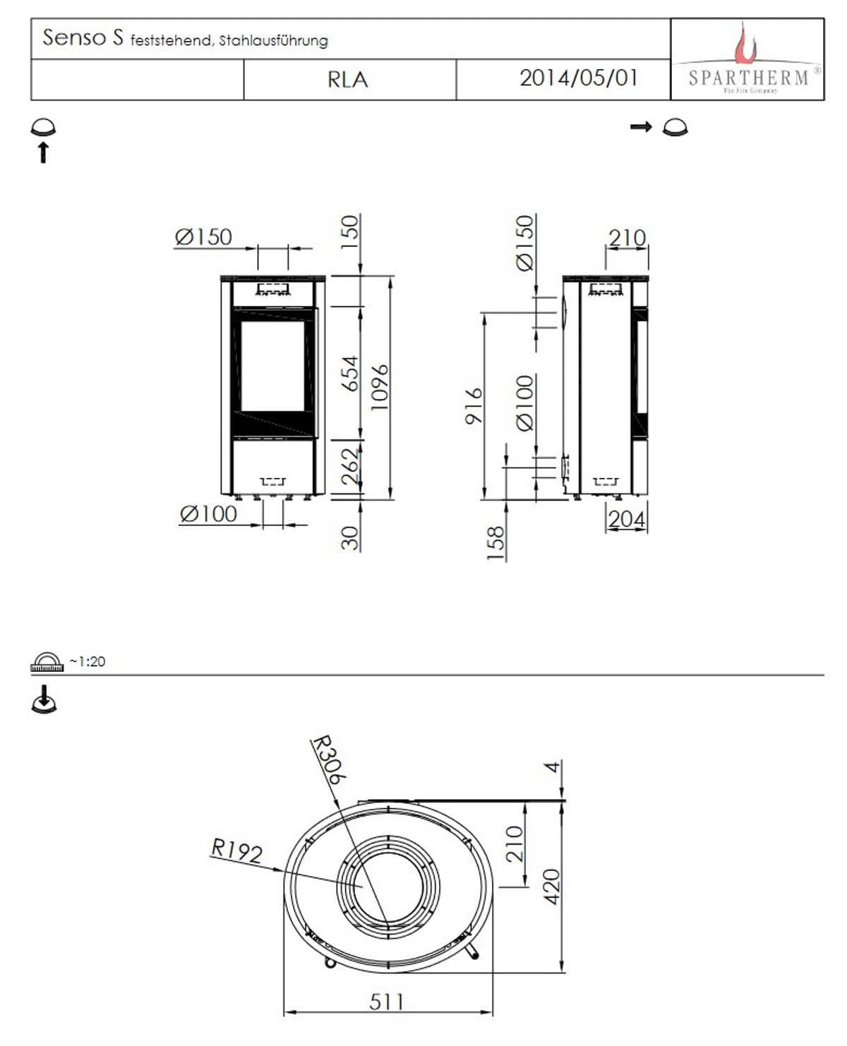
- Высота:1096 мм
- Глубина:420 мм
- Ширина:511 мм
- Варочная поверхность:нет
- Вес:120 кг
- Показать все характеристики
Печь-камин Spartherm Senso S - испытайте Senso S всеми своими чувствами. Овальная и сбалансированная форма обеспечивает идеальный баланс между тонким внешним видом и пространством для правильного огня. Вы видите пламя, слышите потрескивание и чувствуете запах дерева. Тепло балует вас равномерно и надолго благодаря встроенному аккумулятору тепла.

Spartherm Senso S - это компактная дровяная печь с большой стеклянной дверцей. Дверца выполнена в современном стиле с тонировкой по периметру стекла и оснащена доводчиком. В стандартном исполнении дверца оснащена рейлинг-ручкой черного цвета. При желании ручка может быть заменена на рейлинг-ручку из нержавейки за дополнительную плату. Форма корпуса позволяет установить печь любом в помещении с ограниченной площадью, как у стены, так и в углу. Модель оснащена патрубком для подключения подачи воздуха на горение с улицы. Забор воздуха на горение с улицы обеспечивает простой розжиг печи и её стабильную работу. Система вторичного дожига повышает КПД и способствует меньшему загрязнению дымохода. Разнообразная комбинация отделки корпуса позволяет выбрать печь подходящую к любому интерьеру. Фронтальные панели могут быть выполнены из закалённого черного стекла или из стали в черном цвете, в сером цвете (Титан), бежевом (Перламутр) или белом. Боковые панели могут быть из стали в тех-же цветах или облицованы талькомагнезитом или песчаником
Печь-камин Spartherm Senso S в интерьере:

Цена может меняться в зависимости от цвета и отделки модели.

| Высота | 1096 мм |
| Глубина | 420 мм |
| Ширина | 511 мм |
| Варочная поверхность | нет |
| Вес | 120 кг |
| Вид топлива | дрова, брикеты |
| Водяной контур | нет |
| Диаметр дымового патрубка | 150 мм |
| Длительное горение | да |
| КПД | 80 % |
| Материал топки | сталь, шамот |
| Материалы корпуса | сталь |
| Номинальная мощность | 7 кВт |
| Подключение к дымоходу | верхнее, заднее |
| Расположение печи-камина | Пристенное, угловое |
| Производитель | Spartherm (Германия) |
Пока не было вопросов.
Теги: печь-камин, дровяной, Spartherm





























