Форма и функция идеально дополняют друг друга. Его четкие линии делают его впечатляющим объектом из стали и огня. В качестве перегородки перед стеной или посередине комнаты. Sino L всегда привлекает внимание.
Печь-камин Spartherm Sino L производитель Spartherm
- Производитель:
- Модель:5739
- 6
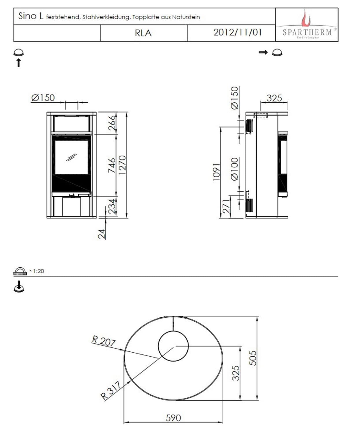
- Высота:1270 мм
- Глубина:505 мм
- Ширина:590 мм
- Варочная поверхность:нет
- Вес:227 кг
- Показать все характеристики
Печь-камин Spartherm Sino L - В классическом компактном Sino L внутренние значения имеют такое же значение, как и внешние. Его ручка интегрирована и появляется только тогда, когда выполняет свою функцию. Идеально пылающий огонь теплый уникальный натуральный камень. Таким образом вы создадите уютную атмосферу в соответствии со своими пожеланиями. С нетерпением ждите своего идеального огня с большим уютом - на всю жизнь.

Spartherm Sino L - это дровяная печь c большой стеклянной дверцей. Дверца выполнена в современном стиле с тонировкой по периметру стекла и оснащена доводчиком. Модель оснащена патрубком для подключения подачи воздуха на горение с улицы. Забор воздуха на горение с улицы обеспечивает простой розжиг печи и её стабильную работу. Система вторичного дожига повышает КПД и способствует меньшему загрязнению дымохода. Облицовка изготовлена из Песчаника Карамель и Талькомагнезита. Фронтальные панели из стали окрашены черной краской.
Печь-камин Spartherm Sino L в интерьере:

Цена может меняться в зависимости от цвета и отделки модели.

| Высота | 1270 мм |
| Глубина | 505 мм |
| Ширина | 590 мм |
| Варочная поверхность | нет |
| Вес | 227 кг |
| Вид топлива | дрова, брикеты |
| Водяной контур | нет |
| Диаметр дымового патрубка | 150 мм |
| Длительное горение | да |
| КПД | 80 % |
| Материал топки | сталь, шамот |
| Материалы корпуса | сталь |
| Номинальная мощность | 7 кВт |
| Подключение к дымоходу | верхнее, заднее |
| Расположение печи-камина | Пристенное, угловое |
| Производитель | Spartherm (Германия) |
Пока не было вопросов.
Теги: печь-камин, дровяной, Spartherm

























