Форма и функция идеально дополняют друг друга. Его четкие линии делают его впечатляющим объектом из стали и огня. В качестве перегородки перед стеной или посередине комнаты. Senso L klassik всегда привлекает внимание.
Печь-камин Spartherm Senso L klassik производитель Spartherm
- Производитель:
- Модель:5730
- 6
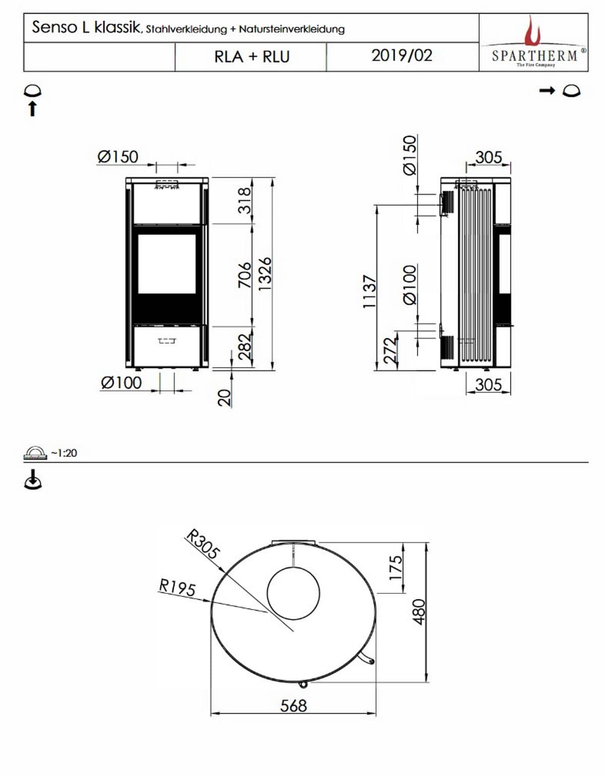
- Высота:1326 мм
- Глубина:480 мм
- Ширина:568 мм
- Варочная поверхность:нет
- Вес:240 кг
- Показать все характеристики
Печь-камин Spartherm Senso L klassik - это классическая печь, неподвластная времени, которая гармонично впишется в ваш интерьер. Он впечатляет своей высококачественной облицовкой из португальского известняка Порто Бланко. Темный корпус и светлая облицовка элегантно контрастируют.

Эта печь из серии Senso от топового немецкого производителя Spartherm отличается овальными линиями корпуса и высоким панорамным стеклом, обеспечивающим прекрасный обзор огня.
Модель Senso L klasik - это элегантная печь с черным стальным фасадом и боковой отделке из натурального камня, известняка Porto Blanco, ее высота составляет 133 см. Длинная дверная ручка в базовой комплектации поставляется в черном цвете, по запросу может быть стальной.
Камера сгорания выложена высококачественным мелкопористым шамотом цвета слоновой кости. За дополнительную плату, печь может быть поставлена с шамотом черного цвета.
Обзорная дверца закрыта жаропрочным керамическим стеклом Schott-Robax, выдерживающим температуру до 760°С и обладающим повышенной стойкостью к тепловому и механическому удару. Под дверцей находится интегральный регулятор подачи воздуха на горение.
В печи применяется система тройного дожига. Первичный воздух поступает внизу камеры сгорания, под колосниковой решеткой. Регистр управления потоком первичного воздуха расположен под дверцей. Вторичный воздух поступает через отверстия на задней стенке камеры сгорания, дополнительно воспламеняет СО (угарный газ, окись углерода) в верхней части камеры сгорания, окисляя его до CO₂. Благодаря этому повышается температура в камере сгорания и КПД (коэффициент полезного действия), меньше СО попадает в атмосферу, таким образом, процесс горения становится более энергоэффективным и экологичным.
Кроме того, дополнительный поток направляется вдоль стеклянной дверцы - так называемая система "чистое стекло". Воздушная завеса омывает стекло, препятствуя быстрому его загрязнению сажей и копотью в ходе эксплуатации печи.
Печь соответствует немецкому стандарту BimSchV2, регулирующему максимальное количество выбросов СО в окружающую среду.
Герметичная конструкция
Печь поставляется в двух вариантах:
- RLA - с забором воздуха из помещения, в котором она установлена,
- RLU - с подводом наружного воздуха и в герметичной конструкции, для работы в энергосберегающих домах, домах с системой рекуперации тепла, принудительной вентиляцией. Опция RLU не требует дополнительной оплаты.
Печь-камин Spartherm Senso L klassik в интерьере:

Цена может меняться в зависимости от цвета и отделки модели.

| Высота | 1326 мм |
| Глубина | 480 мм |
| Ширина | 568 мм |
| Варочная поверхность | нет |
| Вес | 240 кг |
| Вид топлива | дрова, брикеты |
| Водяной контур | нет |
| Диаметр дымового патрубка | 150 мм |
| Длительное горение | да |
| КПД | 80 % |
| Материал топки | сталь, шамот |
| Материалы корпуса | сталь |
| Номинальная мощность | 7 кВт |
| Подключение к дымоходу | верхнее, заднее |
| Расположение печи-камина | Пристенное, угловое |
| Производитель | Spartherm (Германия) |
Пока не было вопросов.
Теги: печь-камин, дровяной, Spartherm
























